$5,500
For Rent
Base rent only. For total monthly price and additional fees, see .
Rented 8/17/2021
- ft²
3 rooms
1 bed
1 bath
Condo
- East Village
Under NYC law, you can't be charged a broker fee if you didn't hire a broker.
Listed By
This home has been saved by 99 users.
Listing by Brown Harris Stevens, Real Estate Principal Office, 100 Fifth Avenue, New York, NY 10011
Unavailable
Rented on 8/17/2021
Days on market
6 days
Last price change
No changes
About
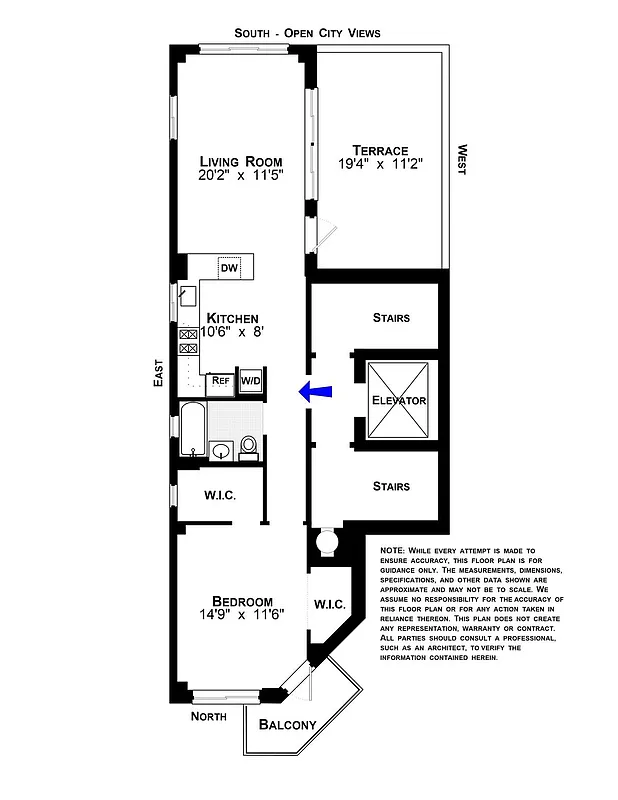
Full floor 1 bedroom, 1 bathroom penthouse home with massive private terrace and private elevator landing. Brilliant light and gorgeous views through all four open exposures. Large open windowed kitchen with stainless steel appliances, plenty of counter and storage space and a brand new washer/dryer. Quiet and spacious bedroom in back with its own balcony, 2 large fully fitted walk-in closets (one w a window!) and beautiful light.
Policies
Sorry, policy info isn’t available right now. Check back later.
Home features
Dishwasher
Hardwood floors
Private outdoor space
Terrace
View
City, Skyline
Washer/dryer
Building amenities
Services and facilities
Doorman
Virtual
Elevator
Laundry in building
Wellness and recreation
No info on wellness and recreation
Shared outdoor space
Roof deck
About the building
137 East 13th Street
137 East 13th Street, New York, NY 10003
9 units
10 stories
2007 built
Property history
Prices shown are base rent only. For total monthly price and additional fees, see .
| Date | Base rent | Event |
|---|---|---|
8/17/2021 | $5,500 | Rented by Brown Harris Stevens |
8/10/2021 | $5,500 | In contract |
8/4/2021 | $5,500 | Listed by Brown Harris Stevens |
Past listing photos
Sign in to take a closer look at how this home compares to similar homes.
Explore East Village
Transit
| Location | Distance |
|---|---|
Lat 3rd Av | under 500 feet |
LNQRW456at 14th St–Union Square | 0.1 miles |
6at Astor Place | 0.25 miles |
RWat 8th St–NYU | 0.27 miles |
Lat 1st Av | 0.32 miles |
About East Village
Rental prices shown are base rent before any fees. Visit listings for cost and fees breakdown.
SalesMedian asking price
1 bed
$762.5K
RentalsMedian asking base rent
1 bed
$3,995
Known and loved for being the birthplace of punk rock, the East Village is known for its vibrant restaurants and cocktail dens. During the day, however, the neighborhood slows down and has a tranquil feel. Meander down a leafy side street, and you'll happen upon plenty of prewar buildings and rusting fire escapes, which lend the East Village its old-fashioned charm.
Learn more about East VillageSimilar homes
Prices shown are base rent only and don't include any fees. Visit each listing to see a complete cost breakdown.
Similar Homes looks at ad spend and other factors like location, price, and number of beds and baths.















































































