View this home virtually
$2,600
For Rent
Base rent only. For total monthly price and additional fees, see .
Rented 6/17/2024
- ft²
2 rooms
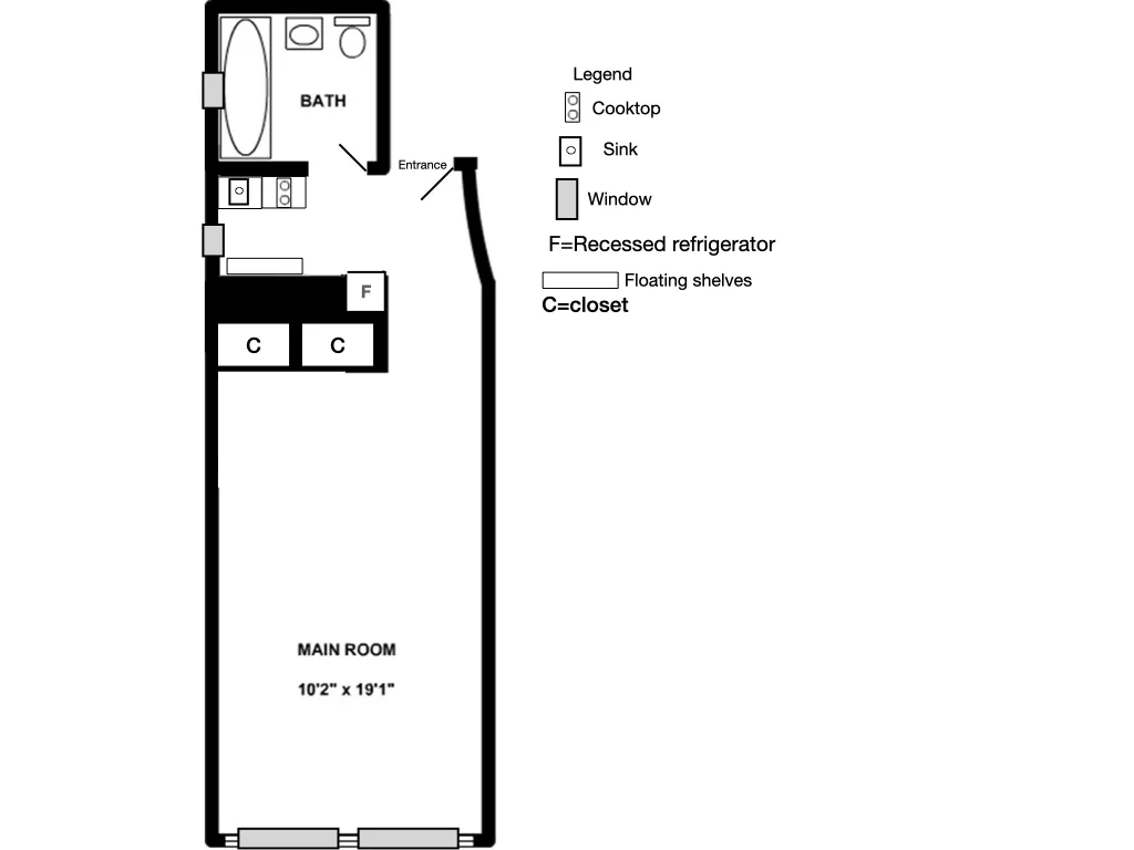
Studio
1 bath
Co-op
- Brooklyn Heights
Under NYC law, you can't be charged a broker fee if you didn't hire a broker.
Listed By
This home has been saved by 39 users.
Listing by Brown Harris Stevens, Real Estate Principal Office, 129 Montague Street, Brooklyn, NY 11201
Searching with a housing voucher, like Section 8?
Unavailable
Rented on 6/17/2024
Days on market
5 days
Last price change
No changes
About
Charming studio in Brooklyn Heights! 5th floor in Elevator coop building. Hardwood floors, recessed lighting, ceiling fan, and high ceilings. . Renovated kitchen with convection oven, electric cooktop. Quartz countertops and new fridge. Laundry on premises. Prime Brooklyn Heights location! No pets please. August 1
Policies
Sorry, policy info isn’t available right now. Check back later.
Home features
No info on home features
Building amenities
Services and facilities
Bike room
Elevator
Laundry in building
Wellness and recreation
No info on wellness and recreation
Shared outdoor space
No info on shared outdoor space
About the building
142 Hicks Street
142 Hicks Street, Brooklyn, NY 11201
19 units
5 stories
1900 built
Property history
Prices shown are base rent only. For total monthly price and additional fees, see .
| Date | Base rent | Event |
|---|---|---|
6/17/2024 | $2,600 | Rented by Brown Harris Stevens |
6/12/2024 | $2,600 | Listed by Brown Harris Stevens |
7/7/2023 | $2,500 | |
6/30/2023 | $2,500 | |
3/1/2023 | $2,400 |
Past listing photos
Sign in to take a closer look at how this home compares to similar homes.
Explore Brooklyn Heights
Transit
| Location | Distance |
|---|---|
23at Clark St | 0.1 miles |
R2345at Borough Hall/Court St | 0.23 miles |
ACat High St | 0.24 miles |
Ferryat Fulton Ferry Landing | 0.4 miles |
ACFRat Jay St–MetroTech | 0.49 miles |
About Brooklyn Heights
Rental prices shown are base rent before any fees. Visit listings for cost and fees breakdown.
SalesMedian asking price
Studio
$467.5K
RentalsMedian asking base rent
Studio
$3,000
Brooklyn Heights is known for its gorgeous housing stock and its impressive backdrop. The Promenade is the neighborhood's most celebrated and popular public space, offering just about the best views of the Brooklyn Bridge and the Manhattan skyline that can be found. There, you're likely to find locals walking their Westies, kids zooming around on scooters, and tourists excitedly snapping pics — every one of them savoring the views from this prime perch of a neighborhood.
Learn more about Brooklyn HeightsSimilar homes
Prices shown are base rent only and don't include any fees. Visit each listing to see a complete cost breakdown.
Similar Homes looks at ad spend and other factors like location, price, and number of beds and baths.































































