$5,500
For Rent
Base rent only. For total monthly price and additional fees, see .
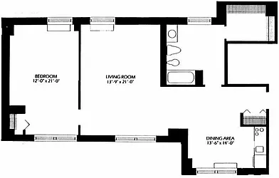
973 ft²
$67 per ft²
4 rooms
1 bed
1 bath
Condo
- Midtown
Under NYC law, you can't be charged a broker fee if you didn't hire a broker.
Listed By
Listing by E Realty International Corp, Corporate Broker, 39 07 Prince Street, Flushing, NY 11354
Available
Available now
Days on market
Listed today
Last price change
No changes
About
Fully Furnished Modern One Bedroom + One Office room – Prime Midtown West! ✨
Live in the very center of Manhattan’s most iconic neighborhoods—steps to Rockefeller Center, Fifth Ave shopping, Central Park, Bryant Park, Columbus Circle and every major subway line.
Walk absolutely everywhere.
LOCATION HIGHLIGHTS
• Midtown West in the 50’s
• Subways, LIRR & Metro North nearby
• Endless restaurants, markets,...
Policies
Sorry, policy info isn’t available right now. Check back later.
Home features
Furnished
Building amenities
Services and facilities
Concierge
Doorman
Full-time
Elevator
Laundry in building
Parking
Wellness and recreation
Gym
Shared outdoor space
Roof deck
About the building
150 West 51st Street
150 West 51st Street, New York, NY 10020
445 units
20 stories
1927 built
Property history
Prices shown are base rent only. For total monthly price and additional fees, see .
| Date | Base rent | Event |
|---|---|---|
1/12/2026 | $5,500 | Listed by E Realty International Corp |
12/14/2020 | $2,900 | |
9/14/2020 | $2,900 | |
9/8/2020 | $2,900 | |
5/28/2020 | $3,100 |
Past listing photos
Sign in to take a closer look at how this home compares to similar homes.
Explore Midtown
Transit
| Location | Distance |
|---|---|
1at 50th St | under 500 feet |
NRWat 49th St | under 500 feet |
BDEat 7th Av | 0.12 miles |
BDFMat 47–50th Sts Rockefeller Center | 0.14 miles |
CEat 50th St | 0.17 miles |
About Midtown
Rental prices shown are base rent before any fees. Visit listings for cost and fees breakdown.
SalesMedian asking price
1 bed
$1.63M
RentalsMedian asking base rent
1 bed
$4,999
If you're looking for a neighborhood with tree-lined streets and quaint coffee shops, Midtown isn't it. The neighborhood is more of a center for business than a residential community, but it puts everything close at hand for those who dwell here. Skyscrapers rise above congested streets, tourists flock to Broadway shows and Times Square, and thousands of commuters pass through Grand Central Terminal, Pennsylvania Station, and the Port Authority Bus Terminal every day.
The real estate options in Midtown can be diverse; surprisingly affordable apartments can be found alongside some of the city's most expensive properties. The headquarters of many global corporations line Sixth Avenue, while Fifth Avenue is an upscale retail destination with stores from some of the world's best-known brands.
Similar homes
Prices shown are base rent only and don't include any fees. Visit each listing to see a complete cost breakdown.
Similar Homes looks at ad spend and other factors like location, price, and number of beds and baths.

























































































































