$5,595
For Rent
Base rent only. For total monthly price and additional fees, see .
Rented 8/6/2025
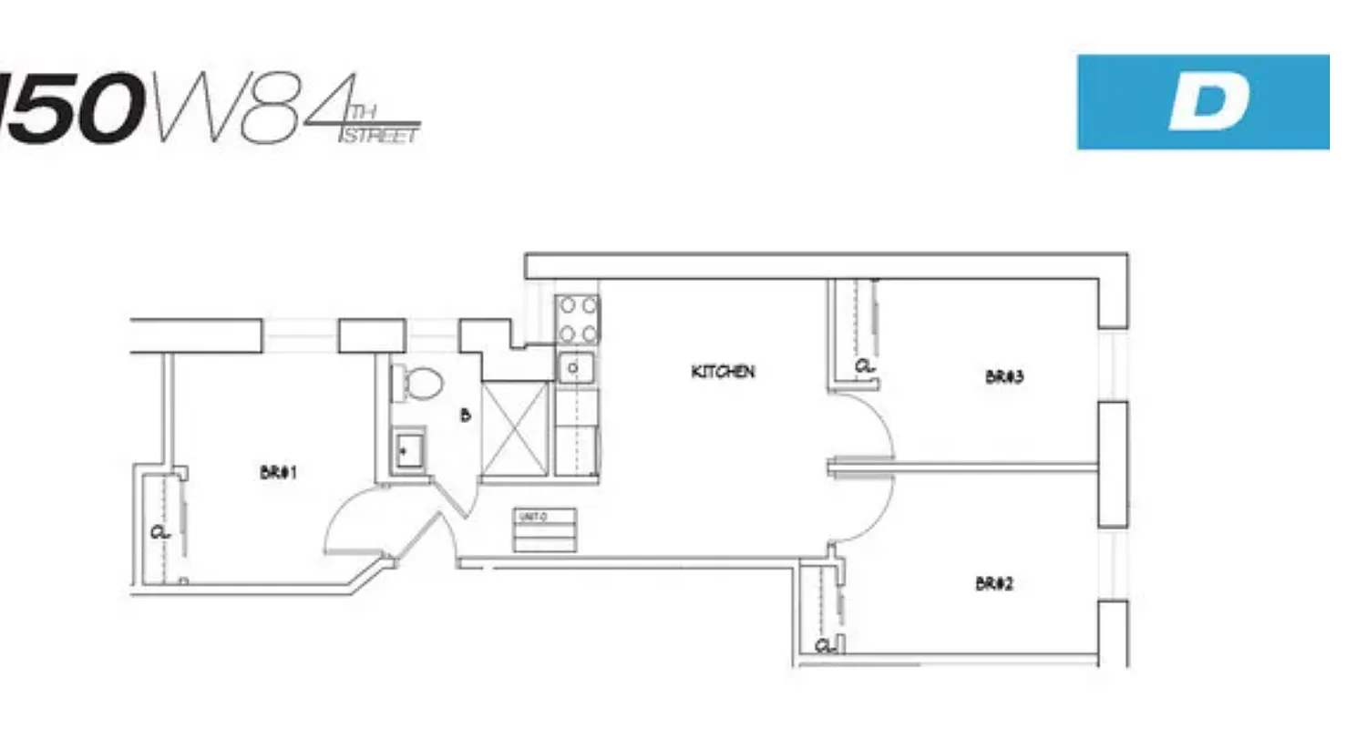
- ft²
6 rooms
3 beds
1 bath
Rental unit
- Upper West Side
Under NYC law, you can't be charged a broker fee if you didn't hire a broker.
Listed By
This home has been saved by 35 users.
Listing by Compass, Corporate Broker, 110 5th Avenue, New York, NY 10011
Unavailable
Rented on 8/6/2025
Days on market
5 days
Last price change
No changes
About
apartment
Policies
Sorry, policy info isn’t available right now. Check back later.
Home features
Dishwasher
Fireplace
Hardwood floors
Washer/dryer
Building amenities
No info on building amenities
About the building
150 West 84th Street
150 West 84th Street, New York, NY 10024
20 units
5 stories
1900 built
Property history
Prices shown are base rent only. For total monthly price and additional fees, see .
| Date | Base rent | Event |
|---|---|---|
8/6/2025 | $5,595 | Rented by Compass |
8/6/2025 | $5,595 | In contract |
8/1/2025 | $5,595 | Listed by Compass |
9/2/2021 | $4,100 | |
9/1/2021 | $4,100 |
Past listing photos
Sign in to take a closer look at how this home compares to similar homes.
Explore Upper West Side
Transit
| Location | Distance |
|---|---|
1at 86th St | 0.17 miles |
1at 79th St | 0.27 miles |
BCat 86th St | 0.29 miles |
BCat 81st St–Museum of Natural History | 0.3 miles |
123at 96th St | 0.51 miles |
About Upper West Side
Rental prices shown are base rent before any fees. Visit listings for cost and fees breakdown.
SalesMedian asking price
3 beds
$3M
RentalsMedian asking base rent
3 beds
$8,450
Sandwiched between two beautiful parks, the Upper West Side is one of the greenest spots in Manhattan. For that reason, it is a perennial favorite. The Upper West Side is relaxed, but never dull. There are plenty of low-key bars and restaurants to frequent along Amsterdam Avenue, and Broadway is an always-bustling commercial center. The wide, tree-lined streets still boast many mom-and-pop stores. Less posh than the Upper East Side, it is more easily accessible by public transportation, and real estate prices are just as, if not more, expensive.
Learn more about Upper West SideSimilar homes
Prices shown are base rent only and don't include any fees. Visit each listing to see a complete cost breakdown.
Similar Homes looks at ad spend and other factors like location, price, and number of beds and baths.






























































































































































































































































