$895,000
For Sale
- ft²
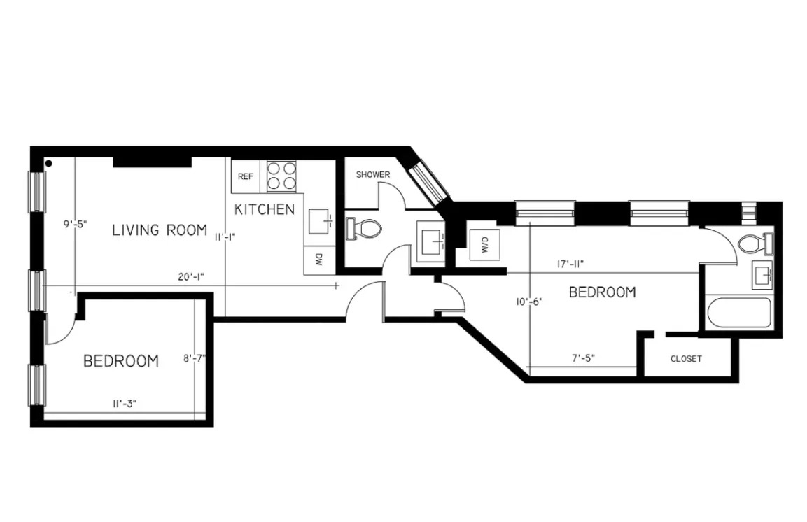
5 rooms
2 beds
2 baths
Co-op
- Upper West Side
Sponsor unit
Sponsor unitA unit being sold for the first time. It’s typically owned by the building. For condos, this is often the developer. For co-ops, this is often the building’s original owner before it went co-op.
This home has been saved by 393 users.
Listing by Compass, Corporate Broker, 962 Madison Avenue, New York, NY 10021 | Brokerage Listing ID: 1835057690774322321
Maintenance fees
$1,461/mo
Estimated payment
$6,069/mo
Legal disclaimerAll calculations are estimates provided by StreetEasy for informational purposes only. Actual amounts or financing terms may vary. Please contact your mortgage provider for specifics.Taxes
Included in maintenance fees
Tax abatement
No info
About
Seller’s agent
description
This sponsor unit is a charming 2-bedroom, 2-bathroom apartment located on the Upper West Side of New York City. It boasts original details with a renovated kitchen and bathroom. There’s a washer and dryer in unit along with a fireplace, adding character and warmth to the space. The 1900 Brownstone walk-up building is situated on a quiet museum block offering a desirable location with close proximity to cultural institutions and various means of public transportation.
Policies
Pets allowed
Cats and dogs allowed
Smoke-free
Home features
Dishwasher
Fireplace
Hardwood floors
View
City
Washer/dryer
Building amenities
Services and facilities
Bike room
Laundry in building
Wellness and recreation
No info on wellness and recreation
Shared outdoor space
No info on shared outdoor space
About the building
151 West 80th Street
151 West 80th Street, New York, NY 10024
10 units
5 stories
1910 built
For sale
2 available units for saleFor rent
0 available units for rentDocuments and permits
View documents and permitsProperty history
- Price Change: No changes
- Days on market: 253 daysThis is the number of days the listing has been on StreetEasy.
| Date | Price | Event |
|---|---|---|
5/6/2025 | $895,000 | Listed by Compass |
Sign in to take a closer look at how this home compares to similar homes.
Explore Upper West Side
Transit
| Location | Distance |
|---|---|
1at 79th St | 0.17 miles |
BCat 81st St–Museum of Natural History | 0.25 miles |
1at 86th St | 0.32 miles |
BCat 86th St | 0.38 miles |
123at 72nd St | 0.41 miles |
About Upper West Side
Rental prices shown are base rent before any fees. Visit listings for cost and fees breakdown.
SalesMedian asking price
2 beds
$1.64M
RentalsMedian asking base rent
2 beds
$6,249
Sandwiched between two beautiful parks, the Upper West Side is one of the greenest spots in Manhattan. For that reason, it is a perennial favorite. The Upper West Side is relaxed, but never dull. There are plenty of low-key bars and restaurants to frequent along Amsterdam Avenue, and Broadway is an always-bustling commercial center. The wide, tree-lined streets still boast many mom-and-pop stores. Less posh than the Upper East Side, it is more easily accessible by public transportation, and real estate prices are just as, if not more, expensive.
Learn more about Upper West Side


















































































































































































