- ft²
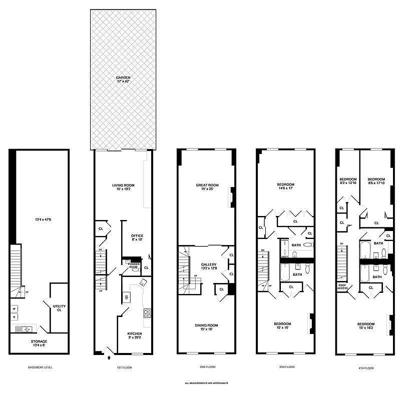
7 rooms
5 beds
5 baths
House
- Lenox Hill
recorded sale
Sold on 2/2/2016
Verified by closing records
Last listed for $7,995,000
Seller's agent
This home has been saved by 30 users.
Listing by Douglas Elliman, Limited Liability Broker, 110 5th Avenue, New York, NY 10011 | Brokerage Listing ID: 2030803
Common charges
Not applicable
Estimated payment
$39,082/mo
Legal disclaimerAll calculations are estimates provided by StreetEasy for informational purposes only. Actual amounts or financing terms may vary. Please contact your mortgage provider for specifics.Taxes
No info
Tax abatement
No info
About
Seller’s agent
Buyer’s agent
description
Fantastic Townhouse on beautiful tree-lined Upper Eastside Street.has been owned and loved by the same family for nearly 40 years! This exceptionally maintained and cared for family treasure is a Federalist Style Townhouse consisting of four stories, a nearly 800 square foot South facing garden, and a large usable basement with high ceilings.
Policies
Sorry, policy info isn’t available right now. Check back later.
Home features
Fireplace
Private outdoor space
Garden
Building amenities
No info on building amenities
About the building
156 East 65th Street
156 East 65th Street, New York, NY 10065
1 unit
3 stories
1899 built
For sale
0 available units for saleFor rent
0 available units for rentDocuments and permits
View documents and permitsProperty history
- Price Change: ↓ $505,000 (-5.9%) on 9/22/15
- Days on market: 168 daysThis is the number of days the listing has been on StreetEasy.
| Date | Price | Event |
|---|---|---|
2/2/2016 | $7,087,500 | Sold by Douglas Elliman |
2/8/2016 | $7,995,000 | No longer available |
12/10/2015 | $7,995,000 | In contract |
9/22/2015 | $7,995,000 | Price decreased by 6% |
6/25/2015 | $8,500,000 | Listed by Douglas Elliman |
Past listing photos
Sign in to take a closer look at how this home compares to similar homes.
Explore Lenox Hill
Transit
| Location | Distance |
|---|---|
FQat Lexington Av/63rd St | 0.11 miles |
6at 68th St–Hunter College | 0.17 miles |
NRW456at Lexington Av/59th St | 0.22 miles |
Qat 72nd St | 0.27 miles |
NRat 59th St | 0.41 miles |






































































































