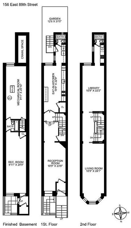
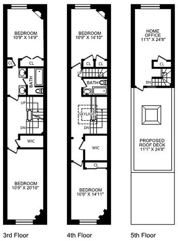
3,673 ft²
$1,170 per ft²
10 rooms
5 beds
5 baths
House
- Carnegie Hill
recorded sale
Sold on 4/8/2016
Verified by closing records
Last listed for $4,500,000
Seller's agents
This home has been saved by 58 users.
Listing by Corcoran, Limited Liability Broker, 590 Madison Avenue, New York, NY 10022 | Brokerage Listing ID: 3484078
Common charges
Not applicable
Estimated payment
$26,999/mo
Taxes
$2,135/mo
Tax abatement
No info
About
Seller’s agent
Buyer’s agent
description
Available for the first time in more than 40 years, this five-story townhouse with approx 3,673 sq ft above grade and full basement is a true architectural treasure. Positioned on a quiet tree-lined street, 156 East 89th Street, one of six landmarked townhouses, was designed by the notable architectural firm of Hubert, Pirsson and Co. in the Queen Anne style. This townhouse was originally built for William Rhinelander in 1887.
Policies
Sorry, policy info isn’t available right now. Check back later.
Home features
Private outdoor space
Patio
Washer/dryer
Building amenities
No info on building amenities
About the building
156 Eat 89 Th Street House
156 East 89th Street, New York, NY 10128
1 unit
4 stories
1899 built
For sale
0 available units for saleFor rent
0 available units for rentDocuments and permits
View documents and permitsProperty history
- Price Change: No changes
- Days on market: 134 days
| Date | Price | Event |
|---|---|---|
4/8/2016 | $4,300,000 | Sold by Corcoran |
4/11/2016 | $4,500,000 | No longer available |
1/29/2016 | $4,500,000 | In contract |
9/17/2015 | $4,500,000 | Listed by Corcoran |
8/25/2016 | $4,750,000 |
Past listing photos
Sign in to take a closer look at how this home compares to similar homes.
Explore Carnegie Hill
Transit
| Location | Distance |
|---|---|
456at 86th St | 0.12 miles |
Qat 86th St | 0.24 miles |
Qat 96th St | 0.31 miles |
6at 96th St | 0.35 miles |
6at 77th St | 0.6 miles |








































































































































