$850,000
For Sale
2,000 ft²
$425 per ft²
4 rooms
2 beds
2 baths
Mixed-use building
- Canarsie
Resale
Listing by Compass, Corporate Broker, 110 Fifth Avenue, New York, NY 10011
Common charges
Not applicable
Estimated payment
$1,409/mo
Taxes
No info
Tax abatement
No info
About
Seller’s agent
description
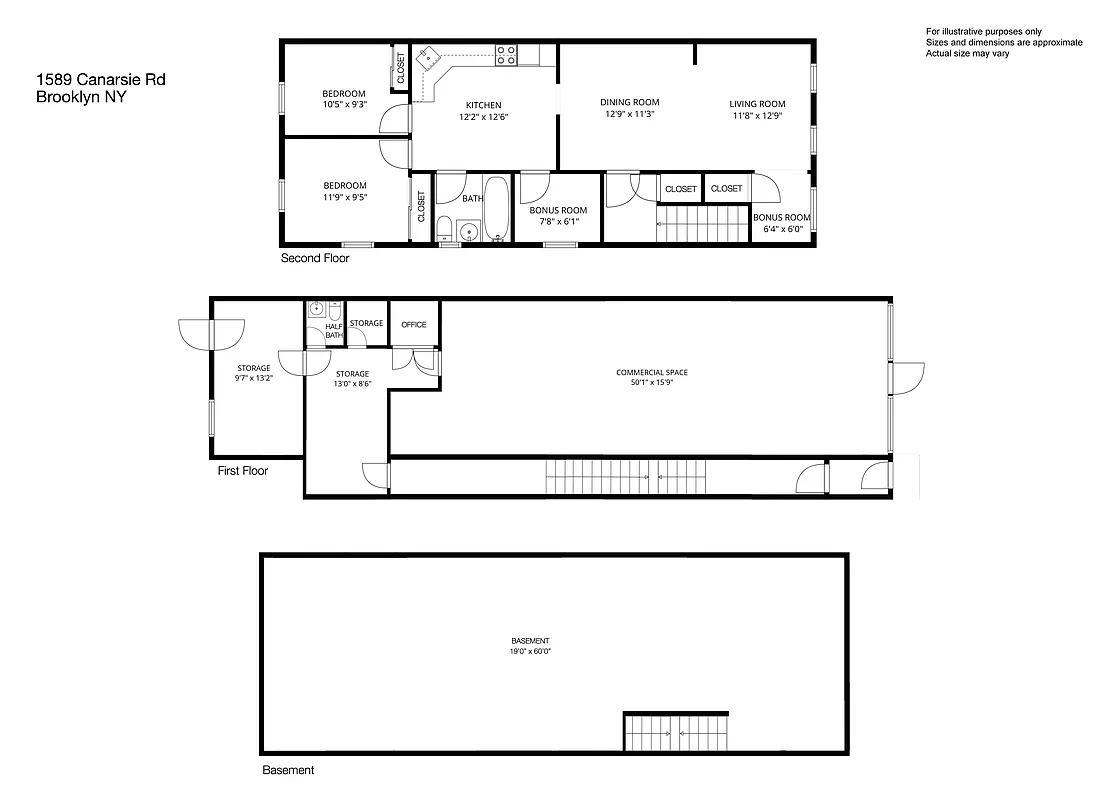
Exceptional opportunity to acquire a 2,000 square foot mixed-use building in the Canarsie section of Brooklyn. This income-producing property features a fully operational laundromat on the ground floor and a two-bedroom residential apartment above, offering a strong combination of commercial and residential revenue.
Policies
Sorry, policy info isn’t available right now. Check back later.
Home features
No info on home features
Building amenities
Services and facilities
Parking
Garage
Wellness and recreation
No info on wellness and recreation
Shared outdoor space
No info on shared outdoor space
About the building
1589 Canarsie Road
1589 Canarsie Road, Brooklyn, NY 11236
1 unit
2 stories
1901 built
Property history
- Price Change: No changes
- Days on market: 21 days
| Date | Price | Event |
|---|---|---|
3/18/2026 | $850,000 | Listed by Compass |
Sign in to take a closer look at how this home compares to similar homes.
Explore Canarsie
Transit
| Location | Distance |
|---|---|
Lat Canarsie–Rockaway Parkway | 0.9 miles |
Lat East 105th St | 1.23 miles |
Lat New Lots Av | 1.76 miles |






































































































































