$2,500,000
For Sale
5,100 ft²
$490 per ft²
10 rooms
5 beds
5 baths
Rental unit
- East Harlem
Resale
This home has been saved by 10 users.
Listing by Brown Harris Stevens, Real Estate Principal Office, 445 Park Avenue, New York, NY 10022
Common charges
Not applicable
Estimated payment
$13,222/mo
Legal disclaimerAll calculations are estimates provided by StreetEasy for informational purposes only. Actual amounts or financing terms may vary. Please contact your mortgage provider for specifics.Taxes
$350/mo
Tax abatement
No info
About
Seller’s agent
description
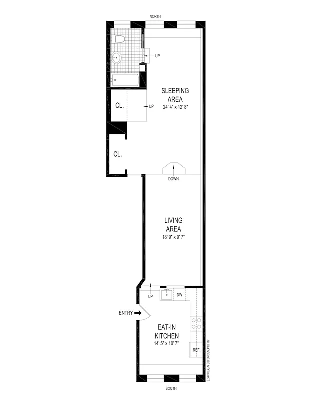
Historic Brownstone in East Harlem
Go back in time at 159 East 107th Street, a classic New York City brownstone steeped in charm and character. Located on a quiet, quintessential East Harlem block, this five-unit property captures the enduring beauty of vintage Manhattan living.
Each full-floor residence embraces the elegance of a bygone era, with gracious proportions, high ceilings, exposed brick walls, and original hardwood floors that speak to the building's rich architectural heritage.
Policies
Sorry, policy info isn’t available right now. Check back later.
Home features
No info on home features
Building amenities
No info on building amenities
About the building
159 East 107th Street
159 East 107th Street, New York, NY 10029
5 units
5 stories
1900 built
For sale
1 available units for saleFor rent
0 available units for rentDocuments and permits
View documents and permitsProperty history
- Price Change: ↓ $295,000 (-10.6%) on 9/3/25
- Days on market: 184 daysThis is the number of days the listing has been on StreetEasy.
| Date | Price | Event |
|---|---|---|
9/3/2025 | $2,500,000 | Price decreased by 11% |
7/9/2025 | $2,795,000 | Listed by Brown Harris Stevens |
Sign in to take a closer look at how this home compares to similar homes.
Explore East Harlem
Transit
| Location | Distance |
|---|---|
6at 110th St | 0.13 miles |
6at 103rd St | 0.23 miles |
6at 116th St | 0.42 miles |
23at 110th St–Central Park North | 0.55 miles |
6at 96th St | 0.56 miles |
About East Harlem
Rental prices shown are base rent before any fees. Visit listings for cost and fees breakdown.
SalesMedian asking price
5 beds
$1.98M
East Harlem has a wealth of mom-and-pop shops, a lively art scene, and is home to East River Plaza shopping mall known for its big-box stores, including Costco.
Learn more about East Harlem














































































































































