$875,000
For Sale
2,480 ft²
$352 per ft²
8 rooms
3 beds
2.5 baths
House
- Rockwood Park
Resale
Learn more about this home by contacting a buyer’s agent.
Benefits of a buyer’s agent:
Represents your needs
Negotiates the deal
Supports the closing process
This home has been saved by 1 user.
Listing by Century 21 Amiable Realty Group II Inc, Corporate Broker, 82 17 153rd Avenue Ste, Howard Beach, NY 11414
Common charges
Not applicable
Estimated payment
$4,482/mo
Legal disclaimerAll calculations are estimates provided by StreetEasy for informational purposes only. Actual amounts or financing terms may vary. Please contact your mortgage provider for specifics.Taxes
No info
Tax abatement
No info
About
Seller’s agent
description
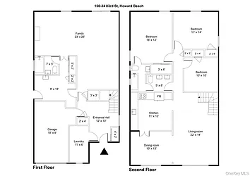
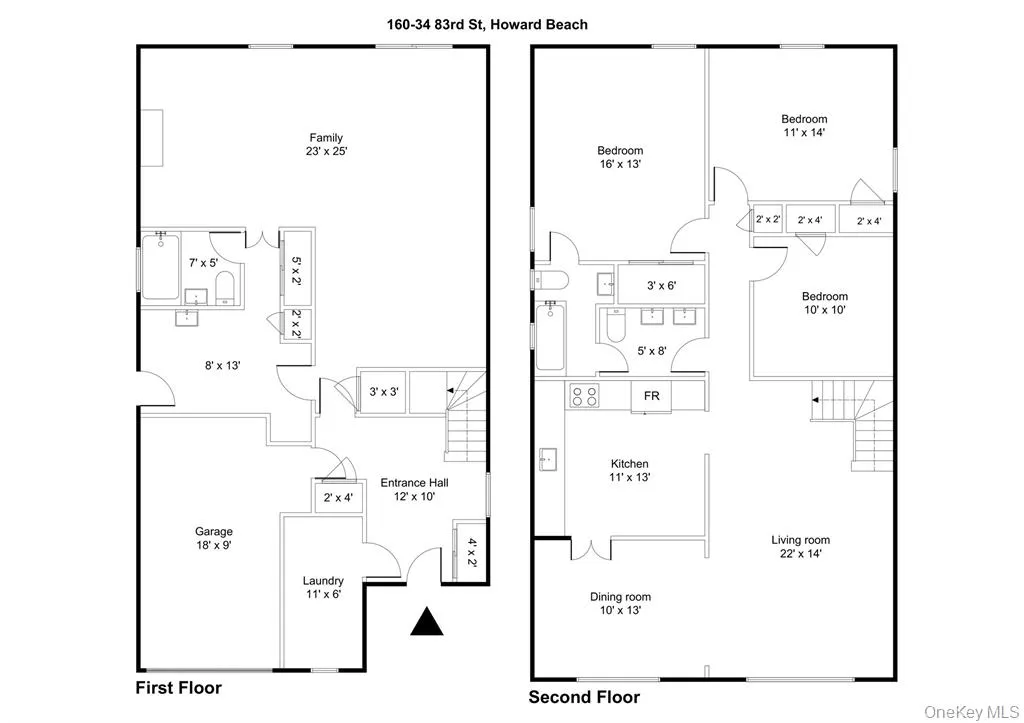
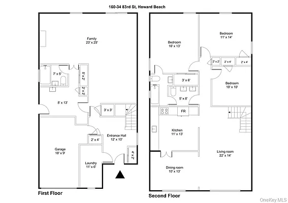
Welcome to this spacious Hi-Ranch located in the New Howard Beach section on a 40x100 lot, offering just under 2,500 square feet of living space. Being sold "as-is". This home presents an excellent opportunity for someone looking to update and personalize. The main level features a formal living room, dining room, and a large eat-in kitchen with great potential to be opened for a more open and airy layout, along with three bedrooms including a generously sized primary bedroom (approx.
Policies
Sorry, policy info isn’t available right now. Check back later.
Home features
Central air
Building amenities
No info on building amenities
About the building
160-34 83rd Street
160-34 83rd Street, Howard Beach, NY 11414
1 unit
2 stories
1965 built
For sale
1 available units for saleFor rent
0 available units for rentDocuments and permits
View documents and permitsProperty history
- Price Change: ↓ $24,999 (-2.8%) on 11/28/25
- Days on market: 22 daysThis is the number of days the listing has been on StreetEasy.
| Date | Price | Event |
|---|---|---|
11/28/2025 | $875,000 | Price decreased by 3% |
11/12/2025 | $899,999 | Listed by Century 21 Amiable Realty Group II Inc |
11/21/2019 | $0 |
Sign in to take a closer look at how this home compares to similar homes.
Explore Rockwood Park
Transit
| Location | Distance |
|---|---|
| 1.03 miles |
| 1.15 miles |
| 1.71 miles |
| 1.73 miles |
| 1.74 miles |
























































































































































































