$14,995,000
For Sale
Delisted 10/9/2025
- ft²
15 rooms
5 beds
5+ baths
House
- Lenox Hill
Resale
Seller's agent
This home has been saved by 58 users.
Listing by Nest Seekers International, Limited Liability Broker, 6243 Northern Boulevard, E Norwich, NY 11732
Common charges
Not applicable
Estimated payment
$86,876/mo
Legal disclaimerAll calculations are estimates provided by StreetEasy for informational purposes only. Actual amounts or financing terms may vary. Please contact your mortgage provider for specifics.Taxes
$9,500/mo
Tax abatement
No info
About
Seller’s agent
description
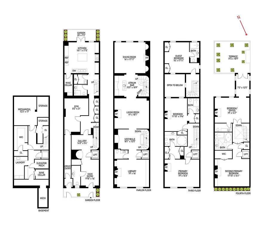
On one of the finest townhouse blocks in Manhattan stands a truly remarkable home—The Symphony Townhouse, a residence where historic elegance meets masterful reinvention. Originally built in 1872 by John Prague, the home’s Victorian roots were transformed into a rare Neo-Georgian masterpiece by architect R.D. Graham. So distinguished is its design that it was recommended for national landmark status.
Policies
Sorry, policy info isn’t available right now. Check back later.
Home features
Central air
Dishwasher
Fireplace
Hardwood floors
Private outdoor space
Balcony, Garden, Roof deck, Terrace
View
City, Skyline
Washer/dryer
Building amenities
Services and facilities
Elevator
Laundry in building
Wellness and recreation
Gym
Shared outdoor space
Courtyard
Roof deck
About the building
163 East 64th Street
163 East 64th Street, New York, NY 10065
1 unit
5 stories
1899 built
For sale
0 available units for saleFor rent
0 available units for rentDocuments and permits
View documents and permitsProperty history
- Price Change: No changes
- Days on market: 160 daysThis is the number of days the listing has been on StreetEasy.
| Date | Price | Event |
|---|---|---|
10/9/2025 | $14,995,000 | Delisted by Nest Seekers International |
5/2/2025 | $14,995,000 | Listed by Nest Seekers International |
1/1/2023 | $17,995,000 | |
1/1/2023 | $17,995,000 | Price decreased by 8% |
1/1/2023 | $19,500,000 |
Sign in to take a closer look at how this home compares to similar homes.
Explore Lenox Hill
Transit
| Location | Distance |
|---|---|
FQat Lexington Av/63rd St | under 500 feet |
6at 68th St–Hunter College | 0.18 miles |
NRW456at Lexington Av/59th St | 0.21 miles |
Qat 72nd St | 0.31 miles |
NRat 59th St | 0.37 miles |










































































































































































































