$4,700
For Rent
Base rent only. For total monthly price and additional fees, see .
Rented 7/28/2022
- ft²
4 rooms
2 beds
1+ baths
Two-family home
- Boerum Hill
Under NYC law, you can't be charged a broker fee if you didn't hire a broker.
Listed By
This home has been saved by 188 users.
Listing by Brown Harris Stevens, Real Estate Principal Office, 129 Montague Street, Brooklyn, NY 11201
Unavailable
Rented on 7/28/2022
Days on market
14 days
Last price change
No changes
About
SUNNY DAYS
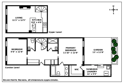
This stylish, renovated floor-and-a-half apartment with private garden is splashed with sunlight from south-facing front windows. A true two-bedroom in an owner-occupied, 19th-century Boerum Hill brownstone, Apartment 1 features newly polished hardwood floors, a chic master bath with double sinks, and a second bath in a unique configuration that allows it to function as a separate powder room for guests.
Policies
Sorry, policy info isn’t available right now. Check back later.
Home features
Dishwasher
Private outdoor space
Garden, Terrace
View
Garden
Washer/dryer
Building amenities
No info on building amenities
About the building
163 Wyckoff Street
163 Wyckoff Street, Brooklyn, NY 11217
2 units
4 stories
1899 built
Property history
Prices shown are base rent only. For total monthly price and additional fees, see .
| Date | Base rent | Event |
|---|---|---|
7/28/2022 | $4,700 | Rented by Brown Harris Stevens |
7/14/2022 | $4,700 | Listed by Brown Harris Stevens |
3/26/2012 | $3,500 | |
10/4/2011 | $3,500 | |
9/23/2011 | $3,500 |
Past listing photos
Sign in to take a closer look at how this home compares to similar homes.
Explore Boerum Hill
Transit
| Location | Distance |
|---|---|
FGat Bergen St | 0.19 miles |
ACGat Hoyt & Schermerhorn | 0.29 miles |
23at Hoyt St | 0.39 miles |
2345at Nevins St | 0.42 miles |
FGat Carroll St | 0.45 miles |
About Boerum Hill
Rental prices shown are base rent before any fees. Visit listings for cost and fees breakdown.
SalesMedian asking price
2 beds
$1.37M
RentalsMedian asking base rent
2 beds
$5,225
Energetic and inviting, Boerum Hill continues its run as one of New York City's most desirable neighborhoods, all while remaining a secret quietly shared amongst its happy residents. Its appeal and vibrancy stem from its housing stock. Handsome Greek revival and Italianate townhouses line the wide, tree-lined streets. These beautiful brick and limestone buildings have long been a mecca for Brooklynites seeking an enclave close to Downtown Brooklyn and lower Manhattan — but far from crowds and highrises.
Main drags like Bergen Street, Atlantic Avenue, and Smith Street are peppered with charming boutiques like Collier West in addition to welcoming cafes, bars, and restaurants, including Rucola, French Louie, and Bacchus, to name a few. Fans of new construction will find new condo developments too. Saint Marks Place, The Hendrick, The Boerum, and The Bergen have expanded buyers' opportunities. Renters will also find plenty of options here in a broad range of prices, from the genuinely affordable to the luxurious.
Similar homes
Prices shown are base rent only and don't include any fees. Visit each listing to see a complete cost breakdown.
Similar Homes looks at ad spend and other factors like location, price, and number of beds and baths.

































































































































