$2,695
For Rent
Base rent only. For total monthly price and additional fees, see .
Rented 2/1/2024
- ft²
3 rooms
1 bed
1 bath
Mixed-use building
- Yorkville
Under NYC law, you can't be charged a broker fee if you didn't hire a broker.
Listed By
This home has been saved by 30 users.
Listing by Avanta Service Center, Tradename Broker, 503 West 179th Street, New York, NY 10033
Searching with a housing voucher, like Section 8?
Unavailable
Rented on 2/1/2024
Days on market
30 days
Last price change
↓ $100 (-3.6%) on 1/22/24
About
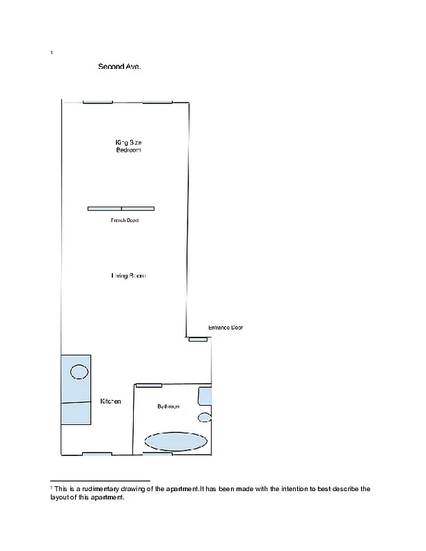
Spacious 1 bedroom apartment nestled in Yorkville – Upper East Side. This lovely apartment has a king size bedroom with, exposed brick wall and hardwood floors throughout. You’ll be living in the proximity of great shopping and 1 block away from the Second Ave Subway line.
Policies
Sorry, policy info isn’t available right now. Check back later.
Home features
Hardwood floors
View
City
Building amenities
No info on building amenities
About the building
1641 2nd Avenue
1641 2nd Avenue, New York, NY 10028
4 units
4 stories
1910 built
Property history
Prices shown are base rent only. For total monthly price and additional fees, see .
| Date | Base rent | Event |
|---|---|---|
2/1/2024 | $2,695 | Rented by Avanta Service Center |
1/22/2024 | $2,695 | Price decreased by 4% |
1/2/2024 | $2,795 | Listed by Avanta Service Center |
Past listing photos
Sign in to take a closer look at how this home compares to similar homes.
Explore Yorkville
Transit
| Location | Distance |
|---|---|
Qat 86th St | under 500 feet |
456at 86th St | 0.2 miles |
Qat 96th St | 0.44 miles |
6at 77th St | 0.46 miles |
6at 96th St | 0.57 miles |
About Yorkville
Rental prices shown are base rent before any fees. Visit listings for cost and fees breakdown.
SalesMedian asking price
1 bed
$684K
RentalsMedian asking base rent
1 bed
$4,150
When George Washington commandeered the building site that would eventually become Gracie Mansion, he probably didn't imagine that this peaceful, riverside enclave would become the lively residential neighborhood it is today. Between then and now, Yorkville has seen a lot of change. Tony mansions and elevated trains went up at the turn of the century and then came down in the postwar years as a middle-class population moved in.
Now, the neighborhood is a haven of high-rise co-ops and condos interspersed with quiet rows of townhouses. The mixed housing stock makes Yorkville a practical choice for anyone seeking a slowed-down Manhattan vibe. Several avenues over from the throngs of Lexington and Third Avenues, Yorkville maintains a low-key, no-frills feel — it's a place where you'll find more diners and donut shops than upscale lounges and boutiques. This homey attitude is writ in its storefronts, where the food is kept simple and the owners are often from around the block.
Similar homes
Prices shown are base rent only and don't include any fees. Visit each listing to see a complete cost breakdown.
Similar Homes looks at ad spend and other factors like location, price, and number of beds and baths.










































































