789 ft²
$1,140 per ft²
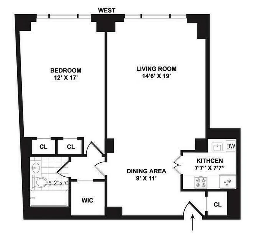
2 rooms
1 bed
1 bath
Condo
- Lenox Hill
Resale
recorded sale
Sold on 12/20/2023
Verified by closing records
Last listed for $975,000
Seller's agent
This home has been saved by 68 users.
Listing by Brown Harris Stevens, Real Estate Principal Office, 650 Madison Avenue, New York, NY 10022
Common charges
$1,085/mo
Estimated payment
$7,509/mo
Taxes
$1,238/mo
Tax abatement
No info
About
Seller’s agent
Buyer’s agent
description
A TRUE OPPORTUNITY
Absolutely classy three room condo beauty, flooded with afternoon sunlight and incredible views of Manhattan mid-town Billionaire Row high towers, through large west facing windows. This elegant one bedroom and one bathroom home is located at one of more central and convenient address in the City, 166 East 63rd, at the well know Beekman Townhouse Condominium.
Policies
Sorry, policy info isn’t available right now. Check back later.
Home features
View
City
Building amenities
Services and facilities
Doorman
Full-time
Elevator
Laundry in building
Live-in super
Parking
Wellness and recreation
No info on wellness and recreation
Shared outdoor space
No info on shared outdoor space
About the building
166 East 63rd Street
166 East 63rd Street, New York, NY 10065
157 units
20 stories
1959 built
For sale
7 available units for saleFor rent
2 available units for rentDocuments and permits
View documents and permitsProperty history
- Price Change: ↓ $20,000 (-2.0%) on 7/13/23
- Days on market: 191 days
| Date | Price | Event |
|---|---|---|
12/20/2023 | $900,000 | Sold by Brown Harris Stevens |
11/1/2023 | $975,000 | In contract |
7/13/2023 | $975,000 | Price decreased by 2% |
5/30/2023 | $995,000 | Price decreased by 4% |
4/24/2023 | $1,035,000 | Listed by Brown Harris Stevens |
Past listing photos
Sign in to take a closer look at how this home compares to similar homes.
Explore Lenox Hill
Transit
| Location | Distance |
|---|---|
FQat Lexington Av/63rd St | under 500 feet |
NRW456at Lexington Av/59th St | 0.12 miles |
6at 68th St–Hunter College | 0.27 miles |
Qat 72nd St | 0.36 miles |
NRat 59th St | 0.37 miles |










































































































