$1,349,000
for sale
In contract 4/10/2026
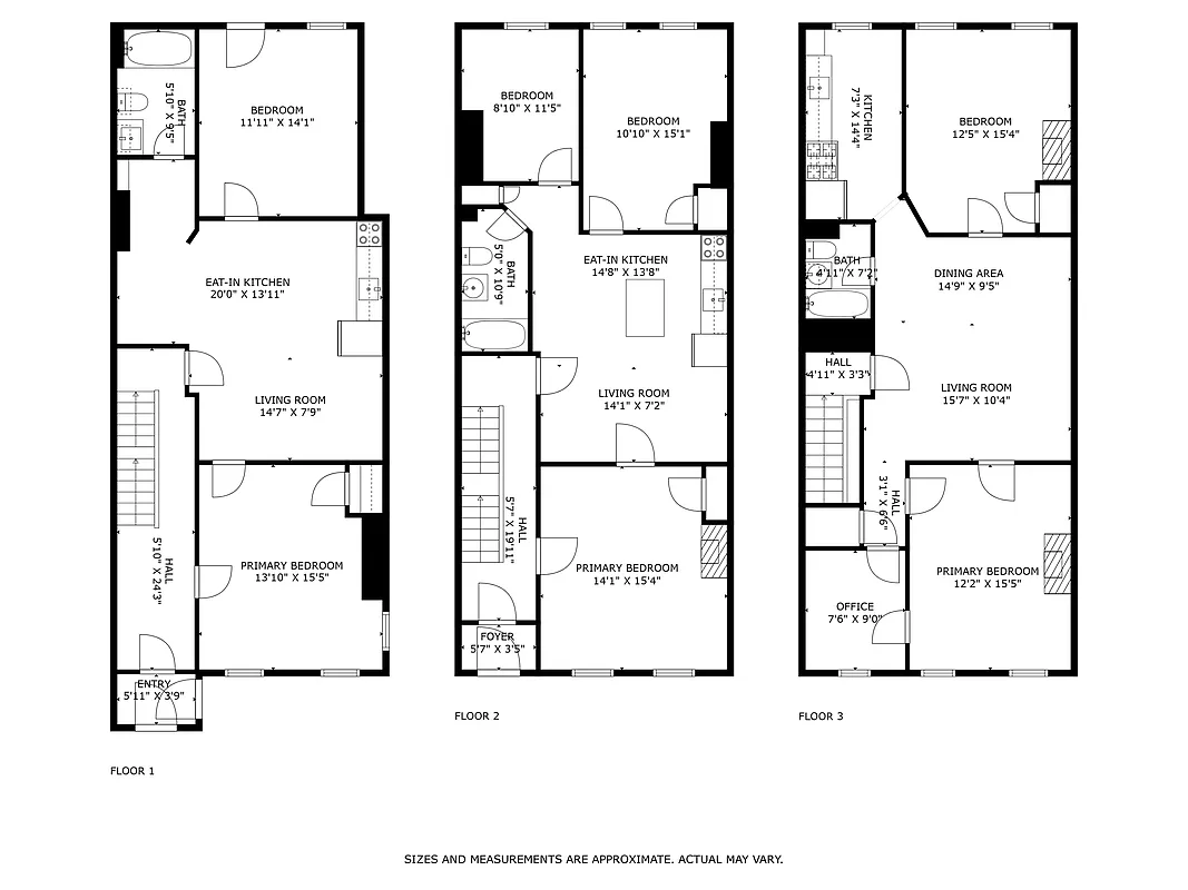
2,700 ft²
$499 per ft²
13 rooms
7 beds
2 baths
Two-family home
- Bushwick
Resale
This home has been saved by 20 users.
Listing by Capri Jet Realty Corp, Corporate Broker, 533 Metropolitan Avenue, Brooklyn, NY 11211
Common charges
Not applicable
Estimated payment
$7,129/mo
Taxes
$249/mo
Tax abatement
No info
About
Seller’s agent
Description
Legal 2 Family w/ Full Finished Basement & Backyard!
This great investment property is a legal 2 family with a full finished basement located in the heart of Bushwick right between Wilson Ave and Central Ave. It is only 3 short blocks away from Wilson Ave L train station and Irving Square Park. Steps away from several bus stops. It is surrounded by stores, groceries, coffee shops, bars, and restaurants.
Policies
Sorry, policy info isn’t available right now. Check back later.
Home features
Hardwood floors
Private outdoor space
Garden
Building amenities
Services and facilities
No info on services and facilities
Wellness and recreation
No info on wellness and recreation
Shared outdoor space
Courtyard
About the building
166 Schaefer Street
166 Schaefer Street, Brooklyn, NY 11207
2 units
2 stories
1915 built
For sale
1 available units for saleFor rent
0 available units for rentDocuments and permits
View documents and permitsProperty history
- Price Change: No changes
- Days on market: 32 days
| Date | Price | Event |
|---|---|---|
4/10/2026 | $1,349,000 | In contract |
3/9/2026 | $1,349,000 | Listed by Capri Jet Realty Corp |
Sign in to take a closer look at how this home compares to similar homes.
Explore Bushwick
Transit
| Location | Distance |
|---|---|
Lat Wilson Av | 0.18 miles |
JZat Chauncey St | 0.42 miles |
Jat Halsey St | 0.45 miles |
Lat Bushwick Av | 0.49 miles |
Lat Halsey St | 0.5 miles |
About Bushwick
Rental prices shown are base rent before any fees. Visit listings for cost and fees breakdown.
SalesMedian asking price
7 beds
$1.7M
Bushwick has seen a lot of change over the years. In the early 1900s, it was known for its thriving distilleries and breweries. After those industries declined, it experienced a long period of blight through the 1970s and 1980s. Now the neighborhood is seeing a renaissance, as artists pushed out of Williamsburg and elsewhere move in and raise property values. Bushwick offers unconventional living spaces: The housing market is full of converted lofts in old factories, sometimes with great access to outdoor space.
Learn more about Bushwick
























































































































