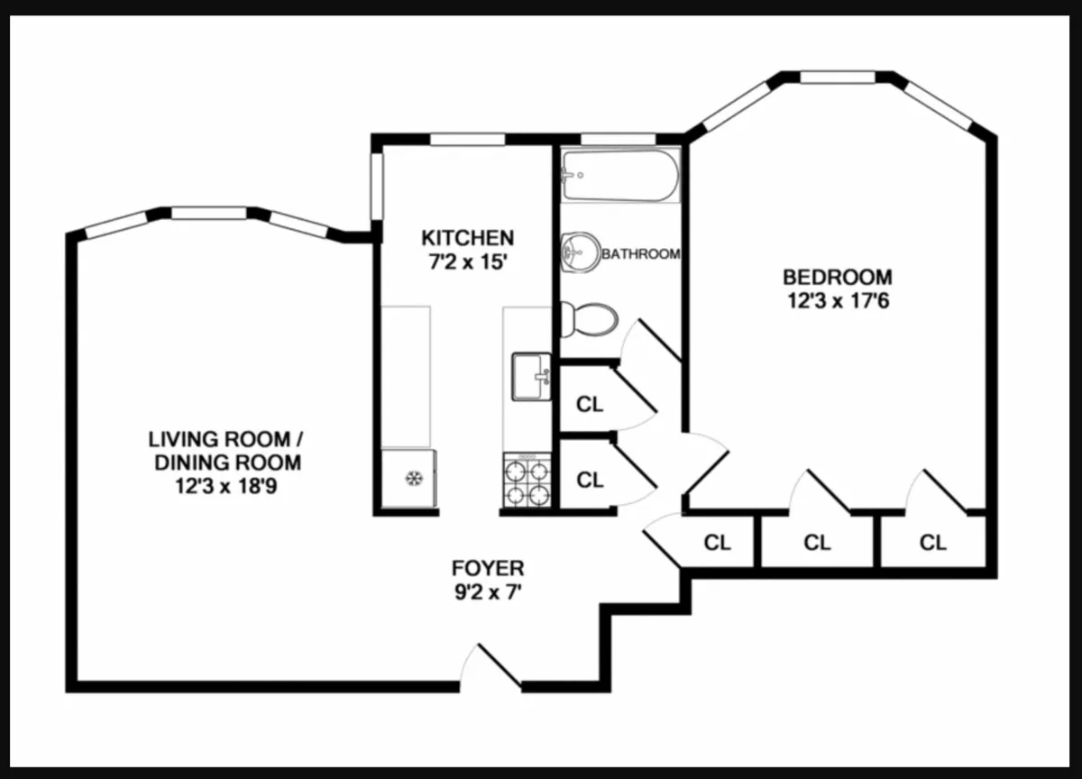
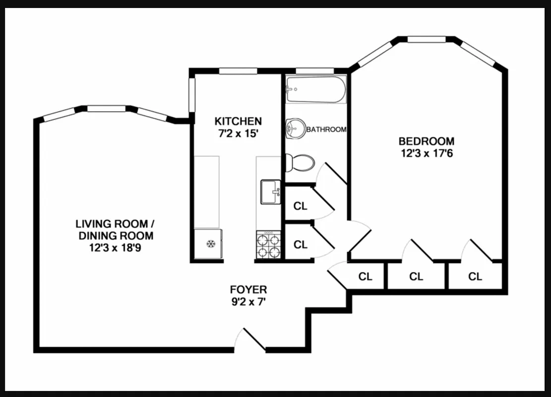
850 ft²
$676 per ft²
1 room
1 bed
1 bath
Co-op
- Windsor Terrace
Resale
reported sale
Sold on 12/3/2023
Not yet verified by closing records
Seller's agents
This home has been saved by 126 users.
Listing by Brooklyn Properties, Corporate Broker, 360 Madison Avenue, New York, NY 10017
Maintenance fees
$888/mo
Estimated payment
$3,720/mo
Legal disclaimerAll calculations are estimates provided by StreetEasy for informational purposes only. Actual amounts or financing terms may vary. Please contact your mortgage provider for specifics.Taxes
Included in maintenance fees
Tax abatement
No info
About
Seller’s agent
description
Greet the morning in this pristine, graceful, and wonderfully comfortable 1 bedroom!
Welcome to this sought after, elegantly maintained, Windsor Terrace pre-war elevator building with common laundry, live-in super and bike storage. Pets are welcome too! Woof!
The perfect layout with 9 windows!!!: a spacious living room/dining area, a spacious bedroom with a generous entrance foyer in between.
Policies
Pets allowed
Cats and dogs allowed
Home features
Dishwasher
Building amenities
Services and facilities
Bike room
Elevator
Live-in super
Wellness and recreation
No info on wellness and recreation
Shared outdoor space
No info on shared outdoor space
About the building
166 Seeley Street
166 Seeley Street, Brooklyn, NY 11218
55 units
6 stories
1938 built
For sale
1 available units for saleFor rent
0 available units for rentDocuments and permits
View documents and permitsProperty history
- Price Change: No changes
- Days on market: 52 daysThis is the number of days the listing has been on StreetEasy.
| Date | Price | Event |
|---|---|---|
12/3/2023 | $575,000 | Sold by Brooklyn Properties |
4/21/2023 | $575,000 | In contract |
2/28/2023 | $575,000 | Listed by Brooklyn Properties |
Past listing photos
Sign in to take a closer look at how this home compares to similar homes.
Explore Windsor Terrace
Transit
| Location | Distance |
|---|---|
Fat Fort Hamilton Parkway | 0.12 miles |
Fat Prospect Park–15 St | 0.41 miles |
Fat Church Av | 0.68 miles |
BQat Church Av | 0.72 miles |
BQat Parkside Av | 0.76 miles |



























































































































