$3,500
For Rent
Base rent only. For total monthly price and additional fees, see .
Rented 12/11/2024
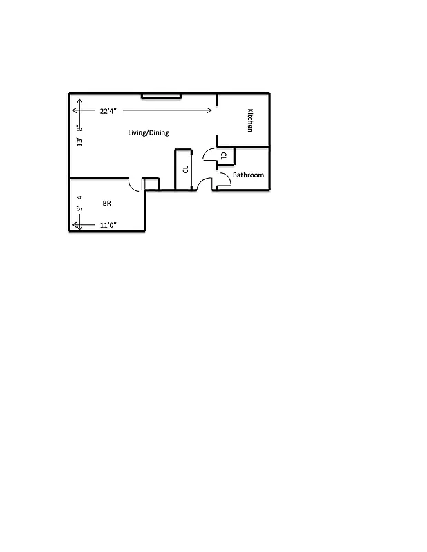
- ft²
3 rooms
1 bed
1 bath
Rental unit
- Cobble Hill
Under NYC law, you can't be charged a broker fee if you didn't hire a broker.
Listed By
This home has been saved by 17 users.
Listing by Brown Harris Stevens, Real Estate Principal Office, 129 Montague Street, Brooklyn, NY 11201
Unavailable
Rented on 12/11/2024
Days on market
5 days
Last price change
No changes
About
Parlor Floor; one flight up, no stoop. This gorgeous Brownstone is right on Cobble Hill Park. Renovated kitchen and renovated bathroom with stand up shower. ! Huge south facing windows facing onto Cobble Hill Park. . Excellent closet space. High ceilings, meticulous hardwood floors. Classic Brownstone. No pets please- immediate
Policies
Sorry, policy info isn’t available right now. Check back later.
Home features
Hardwood floors
View
Park
Building amenities
No info on building amenities
About the building
167 Congress Street
167 Congress Street, Brooklyn, NY 11201
9 units
4 stories
1920 built
Property history
Prices shown are base rent only. For total monthly price and additional fees, see .
| Date | Base rent | Event |
|---|---|---|
12/11/2024 | $3,500 | Rented by Brown Harris Stevens |
12/6/2024 | $3,500 | Listed by Brown Harris Stevens |
11/12/2017 | $2,900 | |
10/30/2017 | $2,900 |
Past listing photos
Sign in to take a closer look at how this home compares to similar homes.
Explore Cobble Hill
Transit
| Location | Distance |
|---|---|
FGat Bergen St | 0.31 miles |
R2345at Borough Hall/Court St | 0.37 miles |
ACFRat Jay St–MetroTech | 0.51 miles |
FGat Carroll St | 0.53 miles |
ACGat Hoyt & Schermerhorn | 0.53 miles |
About Cobble Hill
Rental prices shown are base rent before any fees. Visit listings for cost and fees breakdown.
SalesMedian asking price
1 bed
$750K
RentalsMedian asking base rent
1 bed
$3,999
Cobble Hill is a beautiful, historic neighborhood with some of the borough's most expensive real estate. Despite the abundance of seven-figure homes, Cobble Hill has small-town vibe evident in the mom-and-pop stores and Italian influences that dot Court Street. Walk down the sunny commercial strip and you'll pass the local butcher, the baker and the fishmonger — all family-run and equally popular among local residents and foodies from far and wide.
On the side streets, the homes tend to be large brick townhouses and brownstones owned by single families, with well-kept facades and window boxes. This is a neighborhood where homeownership is a luxury, and residents take that responsibility to heart. The blocks are clean, the community associations active, and the lifestyle warm and genteel.
Similar homes
Prices shown are base rent only and don't include any fees. Visit each listing to see a complete cost breakdown.
Similar Homes looks at ad spend and other factors like location, price, and number of beds and baths.










































































































































