$2,300,000
For Sale
3,225 ft²
$713 per ft²
10 rooms
5 beds
4 baths
Two-family home
- Ridgewood
Resale
Open House
Sat, Feb 28 (12–2 PM ET), by appt only
Listing by Compass, Corporate Broker, 110 5th Avenue, New York, NY 10011
Listing updated in the last 2 days
Common charges
Not applicable
Estimated payment
$11,975/mo
Legal disclaimerAll calculations are estimates provided by StreetEasy for informational purposes only. Actual amounts or financing terms may vary. Please contact your mortgage provider for specifics.Taxes
$556/mo
Tax abatement
No info
About
Seller’s agent
description
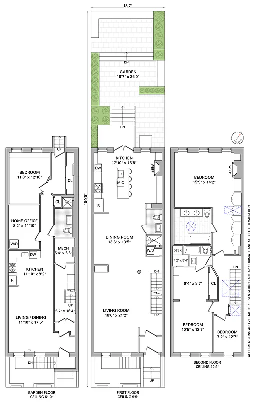
Renovated and reimagined, 1635 Hancock St sets a new standard for townhouse living in Ridgewood, Queens. Thoughtfully redesigned by the current owners—not a developer flip—this home blends elegant design, modern functionality, and exceptional outdoor space. It is truly unlike anything else on the market in Ridgewood today.
Measuring 18.
Policies
Sorry, policy info isn’t available right now. Check back later.
Home features
Central air
Dishwasher
Hardwood floors
Private outdoor space
Garden
Washer/dryer
Building amenities
No info on building amenities
About the building
1635 Hancock Street
1635 Hancock Street, Ridgewood, NY 11385
2 units
2 stories
1910 built
Property history
- Price Change: No changes
- Days on market: Listed todayThis is the number of days the listing has been on StreetEasy.
| Date | Price | Event |
|---|---|---|
2/21/2026 | $2,300,000 | Listed by Compass |
Sign in to take a closer look at how this home compares to similar homes.
Explore Ridgewood
Transit
| Location | Distance |
|---|---|
Mat Seneca Av | 0.25 miles |
Mat Forest Av | 0.29 miles |
Lat Halsey St | 0.3 miles |
LMat Myrtle Av | 0.36 miles |
Mat Fresh Pond Rd | 0.55 miles |

























































































































































