$4,000
For Rent
Base rent only. For total monthly price and additional fees, see .
No longer available 7/27/2013
1,000 ft²
$48 per ft²
6 rooms
3 beds
2 baths
Commercial building
- Greenpoint
Under NYC law, you can't be charged a broker fee if you didn't hire a broker.
Listed By
RUinSTYLE Properties
This home has been saved by 4 users.
Listing by RUinSTYLE Properties
Unavailable
No longer available on 7/27/2013
Days on market
274 days
Last price change
No changes
About
MOVE IN DATE IS FLEXIBLE TO YOUR TIMELINE (from 12/1 - 1/1)
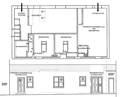
This Carriage House style 3 bed 2 bath will be brand new renovated for you with a fantastic layout. The landlord can build out the space to both a 3 bedroom 2 bathroom residential space or he can build you a 2 bedroom with a storefront too. This is a fantastic option for someone looking for Live/Work.
Policies
Sorry, policy info isn’t available right now. Check back later.
Home features
Dishwasher
Washer/dryer
Building amenities
Services and facilities
No info on services and facilities
Wellness and recreation
No info on wellness and recreation
Shared outdoor space
Roof deck
About the building
172 Java Street
172 Java Street, Brooklyn, NY 11222
- units
4 stories
1931 built
Property history
Prices shown are base rent only. For total monthly price and additional fees, see .
| Date | Base rent | Event |
|---|---|---|
7/27/2013 | $4,000 | No longer available |
10/26/2012 | $4,000 | Listed by RUinSTYLE Properties |
Sign in to take a closer look at how this home compares to similar homes.
Explore Greenpoint
Transit
| Location | Distance |
|---|---|
Gat Greenpoint Av | under 500 feet |
Ferryat India Street Ferry Landing | 0.38 miles |
Gat Nassau Av | 0.42 miles |
LIRRat Long Island City | 0.71 miles |
7at Vernon Blvd–Jackson Av | 0.77 miles |
About Greenpoint
Rental prices shown are base rent before any fees. Visit listings for cost and fees breakdown.
SalesMedian asking price
3 beds
$2.5M
RentalsMedian asking base rent
3 beds
$6,299
A former industrial and maritime neighborhood, Greenpoint was once primarily home to Polish and Irish immigrants and is now home to a large artist's community. The nightlife, restaurant and music scene have burgeoned in recent years as energy and activity in Williamsburg creeps north towards Greenpoint. As a result, the neighborhood's low-key, tucked-away vibe may not last for long, although poor access to public transportation may deter some new residents. Despite all the recent change, Greenpoint still hangs onto its rich history and an old-school community.
Learn more about GreenpointSimilar homes
Prices shown are base rent only and don't include any fees. Visit each listing to see a complete cost breakdown.
Similar Homes looks at ad spend and other factors like location, price, and number of beds and baths.

































































































































