- ft²
2 rooms
Studio
3 baths
Three-family home
- Cobble Hill
Reported sale
Sold on 2/2/2012
Not yet verified by closing records
Seller's agents
Brown Harris Stevens
Brown Harris Stevens
This home has been saved by 8 users.
Listing by Brown Harris Stevens, Real Estate Principal Office | MLS #: 1530480
Common charges
Not applicable
Estimated payment
$10,757/mo
Legal disclaimerAll calculations are estimates provided by StreetEasy for informational purposes only. Actual amounts or financing terms may vary. Please contact your mortgage provider for specifics.Taxes
No info
Tax abatement
No info
About
Seller’s agent
Description
CONTRACT SIGNED
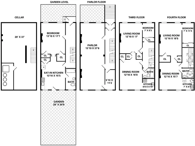
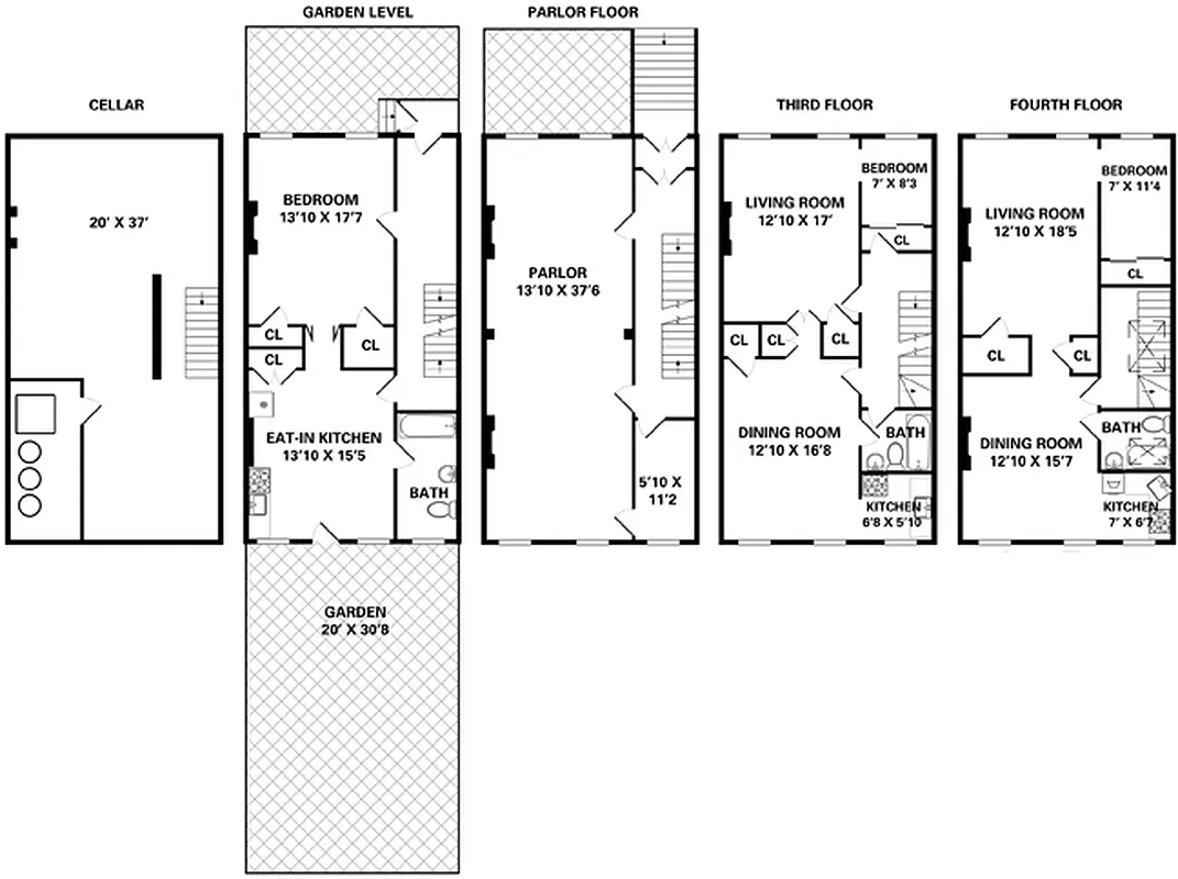
Classic Brownstone
This grand 4 story home is 21 feet wide and is ideally located in the heart of Cobble Hill on a beautiful tree lined street. It has had only 2 owners in its 100 + year history and retains many of the beautiful original details including the plaster moldings on the parlor floor's soaring ceilings, decorative fireplaces, and original shutters.
Policies
Sorry, policy info isn’t available right now. Check back later.
Home features
Private outdoor space
Garden
Building amenities
Services and facilities
Elevator
Wellness and recreation
No info on wellness and recreation
Shared outdoor space
No info on shared outdoor space
About the building
177 Warren Street
177 Warren Street, Brooklyn, NY 11201
3 units
3 stories
1899 built
For sale
0 available units for saleFor rent
0 available units for rentDocuments and permits
View documents and permitsProperty history
- Price change: No changes
- Days on market: 35 daysThis is the number of days the listing has been on StreetEasy.
| Date | Price | Event |
|---|---|---|
10/16/2012 | $2,100,000 | |
9/11/2015 | $2,100,000 | Sold by Brown Harris Stevens |
2/2/2012 | $2,100,000 | No longer available |
10/12/2011 | $2,100,000 | In contract |
9/7/2011 | $2,100,000 | Listed by Brown Harris Stevens |
Past listing photos
Sign in to take a closer look at how this home compares to similar homes.
Explore Cobble Hill
Transit
| Location | Distance |
|---|---|
FGat Bergen St | 0.28 miles |
R2345at Borough Hall/Court St | 0.42 miles |
FGat Carroll St | 0.46 miles |
ACGat Hoyt & Schermerhorn | 0.54 miles |
ACFRat Jay St–MetroTech | 0.55 miles |
About Cobble Hill
Rental prices shown are base rent before any fees. Visit listings for cost and fees breakdown.
SalesMedian asking price
Studio
$694.5K
RentalsMedian asking base rent
Studio
$3,650
Cobble Hill is a beautiful, historic neighborhood with some of the borough's most expensive real estate. Despite the abundance of seven-figure homes, Cobble Hill has small-town vibe evident in the mom-and-pop stores and Italian influences that dot Court Street. Walk down the sunny commercial strip and you'll pass the local butcher, the baker and the fishmonger — all family-run and equally popular among local residents and foodies from far and wide.
On the side streets, the homes tend to be large brick townhouses and brownstones owned by single families, with well-kept facades and window boxes. This is a neighborhood where homeownership is a luxury, and residents take that responsibility to heart. The blocks are clean, the community associations active, and the lifestyle warm and genteel.



























































































































