2,200 ft²
$636 per ft²
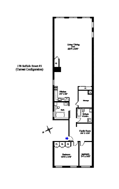
5 rooms
2 beds
2 baths
Co-op
- Lower East Side
Resale
reported sale
Sold on 10/20/2011
Not yet verified by closing records
Seller's agents
Douglas Elliman
Douglas Elliman
Douglas Elliman
Douglas Elliman
This home has been saved by 50 users.
Listing by Douglas Elliman, Limited Liability Broker | Brokerage Listing ID: 1308234
Maintenance fees
$700/mo
Estimated payment
$8,436/mo
Taxes
Included in maintenance fees
Tax abatement
No info
About
Seller’s agent
description
Well worth the walk up. This Lower East side Loft has it all. Two full bedrooms and two home offices. There are two very large full bathrooms, one with open city views from the ’turn of the century’ Bear Claw tub. Brand New hard-wood floors throughout with over ten foot high ceilings. The brand new windows reach over eight feet in height and surround the apartment. The California kitchen and dining area also have open city views.
Policies
Sorry, policy info isn’t available right now. Check back later.
Home features
Washer/dryer
Building amenities
No info on building amenities
About the building
178 Suffolk Street
178 Suffolk Street, New York, NY 10002
6 units
6 stories
1910 built
For sale
0 available units for saleFor rent
0 available units for rentDocuments and permits
View documents and permitsProperty history
- Price Change: ↓ $100,000 (-6.7%) on 8/21/11
- Days on market: 159 days
| Date | Price | Event |
|---|---|---|
4/18/2013 | $1,610,000 | |
4/19/2013 | $1,700,000 | |
1/21/2013 | $1,700,000 | |
10/4/2012 | $1,700,000 | |
2/18/2019 | $1,400,000 | Sold by Douglas Elliman |
Past listing photos
Sign in to take a closer look at how this home compares to similar homes.
Explore Lower East Side
Transit
| Location | Distance |
|---|---|
FJMZat Essex St | 0.22 miles |
FJMZat Delancey St | 0.23 miles |
Fat 2nd Av | 0.25 miles |
JZat Bowery | 0.46 miles |
BDat Grand St | 0.5 miles |
About Lower East Side
Rental prices shown are base rent before any fees. Visit listings for cost and fees breakdown.
SalesMedian asking price
2 beds
$1.5M
RentalsMedian asking base rent
2 beds
$4,895
The narrow streets of the Lower East Side were once lined with tenement buildings, shirt factories and bialy shops. Although a few vestiges of the neighborhood's immigrant heritage remain, many of the tenement buildings have been updated and now offer relatively affordable rental options to young New Yorkers looking to live right in the thick of Downtown Manhattan.
There's no getting around it - the LES is a major nightlife destination. In this part of the city, last call is late and often negotiable -- especially if you're a regular. On weekend nights, the neighborhood is packed as crowds overflow from the local bars and take to the streets in search of a late-night falafel fix before heading onto the next party. During the day, the neighborhood chills out as residents nurse their hangovers or head to work slowly after stopping at one of the area's many trendy juice bars or coffee shops.












































































































































