$365,000
For Sale
Delisted 6/27/2023
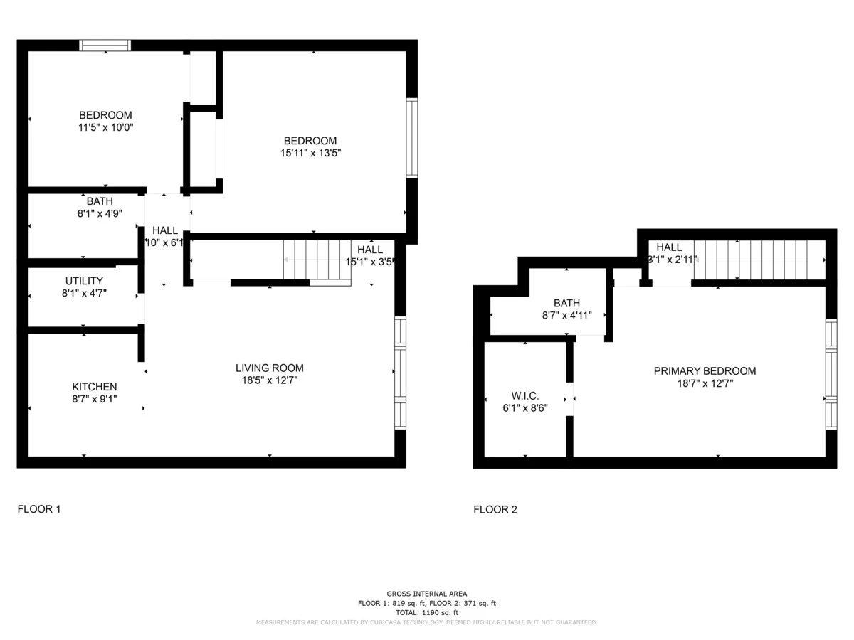
1,297 ft²
$281 per ft²
6 rooms
3 beds
1 bath
Condo
- Mariners Harbor
Resale
Seller's agent
This home has been saved by 33 users.
Listing by REMAX Elite, Limited Liability Broker, 7001 Amboy Road, Staten Island, NY 10307
Common charges
$250/mo
Estimated payment
$2,135/mo
Legal disclaimerAll calculations are estimates provided by StreetEasy for informational purposes only. Actual amounts or financing terms may vary. Please contact your mortgage provider for specifics.Taxes
No info
Tax abatement
No info
About
Seller’s agent
description
Welcome to this beautiful semi attached property inside of a wonderful community! This second floor unit features three extra large bedrooms! The main level showcases an engaging living room/dining area throughout with an open floor plan which makes entertaining family and friends a delight. This level also features a kitchen, laundry room, full bath and two large bedrooms.
Policies
Sorry, policy info isn’t available right now. Check back later.
Home features
No info on home features
Building amenities
No info on building amenities
About the building
18 Richmond Court
18 Richmond Court, Staten Island, NY 10303
- units
- stories
- built
Property history
- Price Change: No changes
- Days on market: 253 daysThis is the number of days the listing has been on StreetEasy.
| Date | Price | Event |
|---|---|---|
6/27/2023 | $365,000 | Delisted by REMAX Elite |
10/17/2022 | $365,000 | Listed by REMAX Elite |
2/26/2010 | $235,000 |
Sign in to take a closer look at how this home compares to similar homes.
Explore Mariners Harbor
Schools
District 31
Schools zoned for this address:
PK, 0K, 01, 02, 03, 04, 05, SE
School attendance zone boundaries are not guaranteed to be accurate — they are provided by a third party and subject to change. Check with the applicable school district prior to making a decision based on these boundaries.

















































































































































































































































