$33,000
for rent
Base rent only. For total monthly price and additional fees, see .
Delisted 5/9/2022
6,000 ft²
$66 per ft²
1 room
Studio
1 bath
Townhouse
- Soho
Under NYC law, you can't be charged a broker fee if you didn't hire a broker.
Listed by
This home has been saved by 28 users.
Listing by Compass, Corporate Broker, 110 5th Avenue, New York, NY 10011
Unavailable
Delisted on 5/9/2022
Days on market
223 days
Last price change
No changes
About
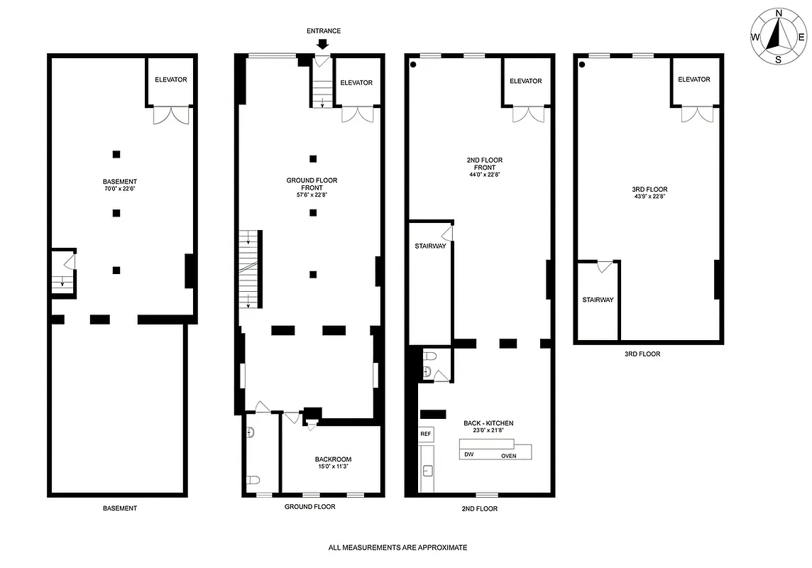
19 Howard Street is a handsome Greek revival style townhouse situated on one of the trendiest block for avant-garde fashion in SoHo, neighors including Rick Owen and Opening ceremony flagship stores. Past tenants include Tom Dixon and UZ a Japanese cosmetic company. Across 3 floors plus lower level, over 4415 SQF on 24 x 72.6 feet lot, it is perfectly suited for a flagship store, gallery or concept store.
Policies
Sorry, policy info isn’t available right now. Check back later.
Home features
No info on home features
Building amenities
No info on building amenities
About the building
19 Howard Street
19 Howard Street, New York, NY 10013
- units
3 stories
1915 built
Property history
Prices shown are base rent only. For total monthly price and additional fees, see .
| Date | Base rent | Event |
|---|---|---|
5/10/2022 | $33,000 | Delisted by Compass |
5/9/2022 | $33,000 | No longer available |
9/28/2021 | $33,000 | Listed by Compass |
Sign in to take a closer look at how this home compares to similar homes.
Explore Soho
Transit
| Location | Distance |
|---|---|
JNQRWZ6at Canal St | under 500 feet |
ACEat Canal St | 0.25 miles |
6at Spring St | 0.27 miles |
1at Franklin St | 0.33 miles |
BDat Grand St | 0.35 miles |
About Soho
Rental prices shown are base rent before any fees. Visit listings for cost and fees breakdown.
SalesMedian asking price
Studio
$1.5M
RentalsMedian asking base rent
Studio
$3,595
SoHo has some of the best people-watching in Manhattan, as it is a mecca for the trendy, sophisticated downtown elite. The north-south running streets are often sites of fashion shoots as well as home to upscale European boutiques. The east-west running streets are busier and always clogged with vendors selling everything from iPhone cases to incense. One you hit Broadway, you could be in just about any mall in America with retail chains, tourists, teenagers, and disgruntled New Yorkers dominating the avenue. The energy in SoHo is fast-paced and all hustle and bustle; it is a quintessentially vibrant New York neighborhood, but certainly not for the faint-of-heart or those looking for some peace and quiet.
Learn more about SohoSimilar homes
Prices shown are base rent only and don't include any fees. Visit each listing to see a complete cost breakdown.
Similar Homes looks at ad spend and other factors like location, price, and number of beds and baths.
















































































































































