3,040 ft²
$1,282 per ft²
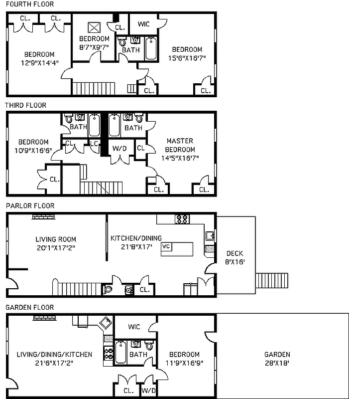
11 rooms
6 beds
3.5 baths
Two-family home
- Brooklyn Heights
recorded sale
Sold on 6/9/2016
Verified by closing records
Last listed for $3,995,000
Seller's agent
This home has been saved by 29 users.
Listing by Brown Harris Stevens, Real Estate Principal Office, 100 Seventh Avenue, Brooklyn, NY 11215 | MLS #: 14078323
Common charges
Not applicable
Estimated payment
$19,862/mo
Taxes
No info
Tax abatement
No info
About
Seller’s agent
Buyer’s agent
description
CONTRACT SIGNED
4 STORY BROWNSTONE
NEW TO MARKET. Wonderful Brooklyn Heights 4-story brownstone. Used as an owner's spacious upper 5 bedroom, 3.5 bath triplex and a garden-level floor through apartment. This home has been beautifully renovated and has an amazing layout on all of the floors. The parlor floor offers a large living room and a renovated, open cook's kitchen that opens up to a dining room.
Policies
Sorry, policy info isn’t available right now. Check back later.
Home features
Dishwasher
Fireplace
Private outdoor space
Garden
Washer/dryer
Building amenities
Services and facilities
Storage space
Wellness and recreation
No info on wellness and recreation
Shared outdoor space
Deck
About the building
190 State Street
190 State Street, Brooklyn, NY 11201
2 units
3 stories
1910 built
For sale
0 available units for saleFor rent
0 available units for rentDocuments and permits
View documents and permitsProperty history
- Price Change: No changes
- Days on market: 27 days
| Date | Price | Event |
|---|---|---|
6/9/2016 | $3,900,000 | Sold by Brown Harris Stevens |
6/15/2016 | $3,995,000 | No longer available |
1/31/2016 | $3,995,000 | In contract |
1/4/2016 | $3,995,000 | Listed by Brown Harris Stevens |
1/13/2006 | $2,100,500 |
Past listing photos
Sign in to take a closer look at how this home compares to similar homes.
Explore Brooklyn Heights
Transit
| Location | Distance |
|---|---|
R2345at Borough Hall/Court St | 0.17 miles |
FGat Bergen St | 0.26 miles |
ACFRat Jay St–MetroTech | 0.3 miles |
ACGat Hoyt & Schermerhorn | 0.36 miles |
23at Hoyt St | 0.38 miles |
About Brooklyn Heights
Rental prices shown are base rent before any fees. Visit listings for cost and fees breakdown.
SalesMedian asking price
6 beds
$8.85M
Brooklyn Heights is known for its gorgeous housing stock and its impressive backdrop. The Promenade is the neighborhood's most celebrated and popular public space, offering just about the best views of the Brooklyn Bridge and the Manhattan skyline that can be found. There, you're likely to find locals walking their Westies, kids zooming around on scooters, and tourists excitedly snapping pics — every one of them savoring the views from this prime perch of a neighborhood.
Learn more about Brooklyn Heights













































































































































