- ft²
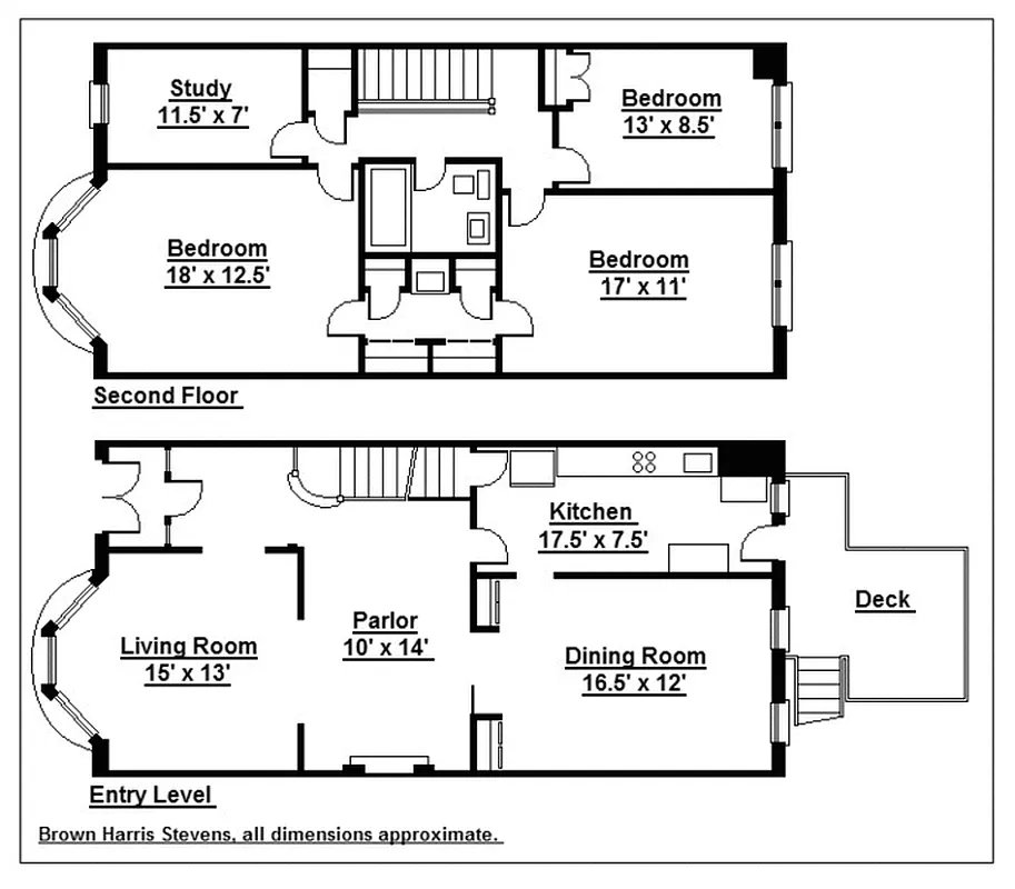
6 rooms
4 beds
2 baths
recorded sale
Sold on 1/7/2014
Verified by closing records
Last listed for $1,300,000
Seller's agent
This home has been saved by 12 users.
Listing by Brown Harris Stevens, Real Estate Principal Office, 129 Montague Street, Brooklyn, NY 11201 | MLS #: 9111407
Common charges
Not applicable
Estimated payment
$6,685/mo
Legal disclaimerAll calculations are estimates provided by StreetEasy for informational purposes only. Actual amounts or financing terms may vary. Please contact your mortgage provider for specifics.Taxes
No info
Tax abatement
No info
About
Seller’s agent
description
CONTRACT SIGNED
Lovely Limestone, Beautiful Block
Built in 1910 and rich in period detail, this 20 foot wide one family limestone townhouse is located on one of Historic Lefferts Manor's most coveted blocks. With its graceful layout and central air conditioning, this very comfortable home is in excellent, move-in condition.
Policies
Sorry, policy info isn’t available right now. Check back later.
Home features
Central air
Private outdoor space
Garden
Washer/dryer
Building amenities
Services and facilities
No info on services and facilities
Wellness and recreation
No info on wellness and recreation
Shared outdoor space
Deck
About the building
207 Midwood Street
207 Midwood Street, Brooklyn, NY 11225
1 unit
2 stories
1905 built
For sale
0 available units for saleFor rent
0 available units for rentDocuments and permits
View documents and permitsProperty history
- Price Change: No changes
- Days on market: 44 daysThis is the number of days the listing has been on StreetEasy.
| Date | Price | Event |
|---|---|---|
1/7/2014 | $1,205,000 | Sold by Brown Harris Stevens |
1/13/2014 | $1,300,000 | No longer available |
11/1/2013 | $1,300,000 | In contract |
9/18/2013 | $1,300,000 | Listed by Brown Harris Stevens |
Past listing photos
Sign in to take a closer look at how this home compares to similar homes.
Explore Prospect Lefferts Gardens
Transit
| Location | Distance |
|---|---|
| 0.27 miles |
| 0.29 miles |
| 0.43 miles |
| 0.52 miles |
| 0.58 miles |











































































































































