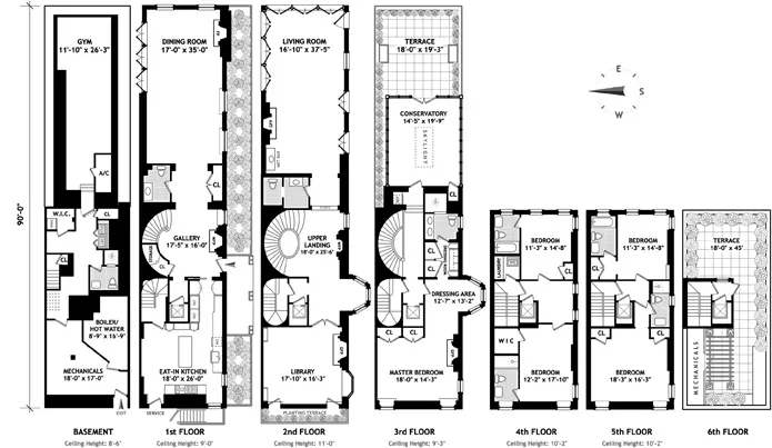
7,226 ft²
$4,753 per ft²
8 rooms
6 beds
5+ baths
House
- Beekman
recorded sale
Sold on 6/18/2013
Verified by closing records
Last listed for $43,000,000
Seller's agent
This home has been saved by 42 users.
Listing by Brown Harris Stevens, Real Estate Principal Office, 445 Park Avenue, New York, NY 10022 | MLS #: 3468052
Common charges
Not applicable
Estimated payment
$209,263/mo
Legal disclaimerAll calculations are estimates provided by StreetEasy for informational purposes only. Actual amounts or financing terms may vary. Please contact your mortgage provider for specifics.Taxes
No info
Tax abatement
No info
About
Seller’s agent
description
The Ellen Biddle Shipman Residence
THE LANDSCAPE ARCHITECT AS ARTIST
"There is not in all New York another piece of property like it, for it has the seclusion of Beekman Place, southern exposure, and a beauty of architecture combined with the extended view of the East River, said Ellen Biddle Shipman of the house, 21 Beekman Place, she redesigned in 1925 and occupied until 1946. Mrs.
Policies
Sorry, policy info isn’t available right now. Check back later.
Home features
Private outdoor space
Garden, Terrace
Building amenities
Services and facilities
Doorman
Virtual
Elevator
Live-in super
Wellness and recreation
No info on wellness and recreation
Shared outdoor space
Roof deck
About the building
21 Beekman Place
21 Beekman Place, New York, NY 10022
1 unit
5 stories
1910 built
For sale
0 available units for saleFor rent
0 available units for rentDocuments and permits
View documents and permitsProperty history
- Price Change: ↓ $5,750,000 (-11.8%) on 4/18/13
- Days on market: 263 daysThis is the number of days the listing has been on StreetEasy.
| Date | Price | Event |
|---|---|---|
6/18/2013 | $34,350,000 | Sold by Brown Harris Stevens |
4/18/2013 | $43,000,000 | Price decreased by 12% |
9/30/2012 | $48,750,000 | Listed by Brown Harris Stevens |
Past listing photos
Sign in to take a closer look at how this home compares to similar homes.
Explore Beekman
Transit
| Location | Distance |
|---|---|
EM6at Lexington Av–53rd St | 0.38 miles |
EM6at 51st St | 0.45 miles |
S4567at Grand Central–42nd St | 0.57 miles |
LIRRat Grand Central | 0.59 miles |
NRW456at Lexington Av/59th St | 0.61 miles |
















































































































































































