$9,500
For Rent
Base rent only. For total monthly price and additional fees, see .
Rented 9/21/2023
- ft²
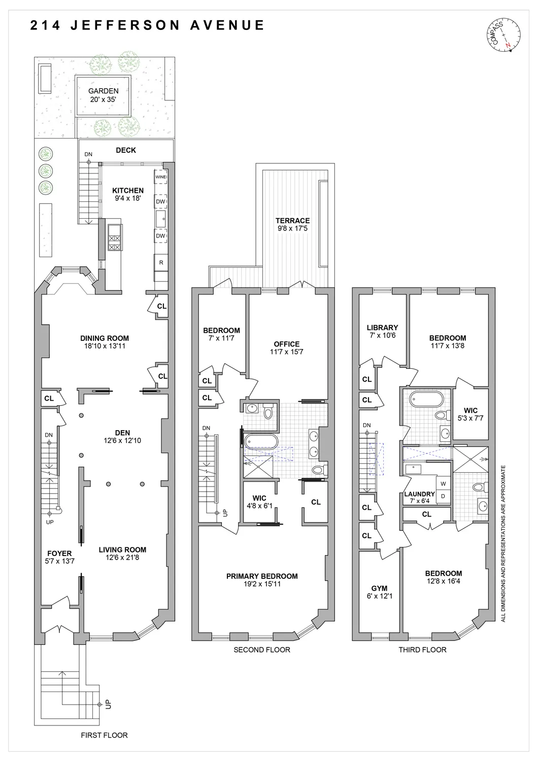
14 rooms
4 beds
3.5 baths
Two-family home
- Bedford-Stuyvesant
Under NYC law, you can't be charged a broker fee if you didn't hire a broker.
Listed By
This home has been saved by 55 users.
Listing by Compass, Corporate Broker, 110 5th Avenue, New York, NY 10011
Unavailable
Rented on 9/21/2023
Days on market
73 days
Last price change
↓ $3,000 (-24.0%) on 9/13/23
About
ABSOLUTELY STUNNING BROWNSTONE TRIPLEX WITH PRIVATE GARDEN AND INCREDIBLE FINISHES.
The beauty, heritage and spirit of Bedford Stuyvesant are on full display in this exceptional triplex property. Fully renovated last year, and with extensive, original architectural detailing it is simply stunning. Rarely do homes of this quality, with this attention to detail, become available on the rental market.
Policies
Sorry, policy info isn’t available right now. Check back later.
Home features
Central air
Dishwasher
Fireplace
Hardwood floors
Private outdoor space
Balcony, Garden, Terrace
View
Garden
Washer/dryer
Building amenities
No info on building amenities
About the building
214 Jefferson Avenue
214 Jefferson Avenue, Brooklyn, NY 11216
2 units
3 stories
1899 built
Property history
Prices shown are base rent only. For total monthly price and additional fees, see .
| Date | Base rent | Event |
|---|---|---|
9/21/2023 | $9,500 | Rented by Compass |
9/13/2023 | $9,500 | Price decreased by 24% |
7/21/2023 | $12,500 | Price decreased by 11% |
7/10/2023 | $14,000 | Listed by Compass |
Past listing photos
Sign in to take a closer look at how this home compares to similar homes.
Explore Bedford-Stuyvesant
Transit
| Location | Distance |
|---|---|
ACat Nostrand Av | 0.18 miles |
LIRRat Nostrand Avenue | 0.33 miles |
ACSat Franklin Av | 0.37 miles |
ASat Franklin Av | 0.39 miles |
ACat Kingston–Throop | 0.47 miles |
About Bedford-Stuyvesant
Rental prices shown are base rent before any fees. Visit listings for cost and fees breakdown.
SalesMedian asking price
4 beds
$2.18M
RentalsMedian asking base rent
4 beds
$5,897
Bedford-Stuyvesant is a vast Brooklyn neighborhood filled with historic brownstones. Fans of Victorian architecture will appreciate the striking abodes in the leafy historic district.
Learn more about Bedford-StuyvesantSimilar homes
Prices shown are base rent only and don't include any fees. Visit each listing to see a complete cost breakdown.
Similar Homes looks at ad spend and other factors like location, price, and number of beds and baths.



































































































































































