$3,380
For Rent
Base rent only. For total monthly price and additional fees, see .
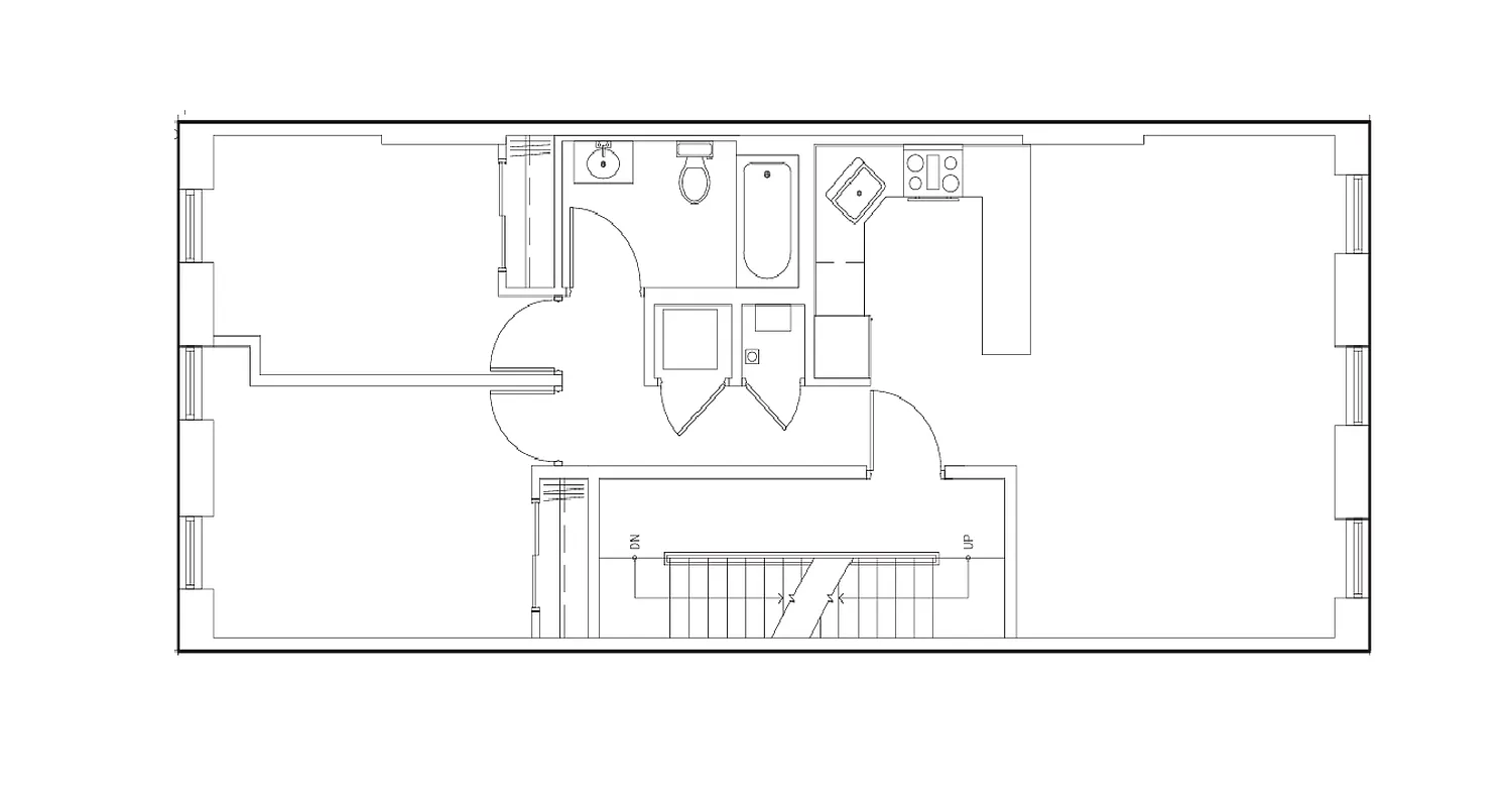
900 ft²
$45 per ft²
2 rooms
2 beds
1 bath
Rental unit
- Central Harlem
Under NYC law, you can't be charged a broker fee if you didn't hire a broker.
Listed By
Owner
This home has been saved by 1 user.
Open House
Sat, Mar 28 (12–2 PM ET), by appt only
Listing by Owner
Available
5/1/2026
Days on market
Listed today
Last price change
No changes
About
OPEN HOUSE ON SATURDAY!
Newly renovated two-bedroom, one-bath residence in the heart of Harlem offers a refined balance of classic character and contemporary living. Rich tigerwood hardwood floors run throughout the home, complemented by exposed brick accents and sleek stainless-steel appliances that add both warmth and edge. Walk -up two flights - no skylight.
Policies
Sorry, policy info isn’t available right now. Check back later.
Home features
Central air
Dishwasher
Fireplace
Hardwood floors
Washer/dryer
Building amenities
Services and facilities
Bike room
Doorman
Virtual
Package room
Storage space
Cold storage, Locker/cage
Wellness and recreation
No info on wellness and recreation
Shared outdoor space
No info on shared outdoor space
About the building
2148 5th Avenue
2148 5th Avenue, New York, NY 10037
5 units
4 stories
1910 built
Property history
Prices shown are base rent only. For total monthly price and additional fees, see .
| Date | Base rent | Event |
|---|---|---|
3/27/2026 | $3,380 | Listed by Owner |
Sign in to take a closer look at how this home compares to similar homes.
Explore Central Harlem
Transit
| Location | Distance |
|---|---|
23at 135th St | 0.24 miles |
23at 125th St | 0.35 miles |
456at 125th St | 0.43 miles |
BCat 135th St | 0.61 miles |
ABCDat 125th St | 0.62 miles |
About Central Harlem
Rental prices shown are base rent before any fees. Visit listings for cost and fees breakdown.
SalesMedian asking price
2 beds
$704K
RentalsMedian asking base rent
2 beds
$3,364
Harlem begins directly above Central Park, where you will find busy thoroughfares adjacent to quiet tree-lined blocks lined with brownstones and pre-war apartment buildings.
Learn more about Central HarlemSimilar homes
Prices shown are base rent only and don't include any fees. Visit each listing to see a complete cost breakdown.
Similar Homes looks at ad spend and other factors like location, price, and number of beds and baths.
























































































































