$1,350,000
For Sale
3,440 ft²
$392 per ft²
11 rooms
Studio
0 baths
Rental unit
- Prospect Lefferts Gardens
Resale
This home has been saved by 11 users.
Listing by Invictus Property Advisors LLC, Limited Liability Broker, 222 West 37th Street, New York, NY 10018
Common charges
Not applicable
Estimated payment
$7,180/mo
Taxes
No info
Tax abatement
No info
About
Seller’s agent
description
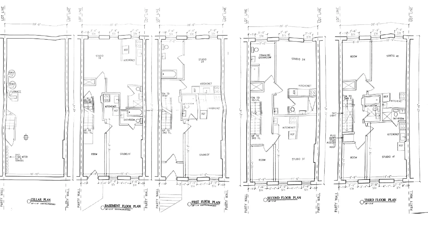
Invictus Property Advisors has been retained on an exclusive basis for the sale of 22 Hawthorne Street, a gut-renovated multifamily property that can be delivered vacant upon closing.
Situated on a quiet residential block in Brooklyn, 22 Hawthorne Street presents a compelling opportunity for both investors and end users seeking a renovated property with future growth potential.
Policies
Sorry, policy info isn’t available right now. Check back later.
Home features
Private outdoor space
Garden
Building amenities
No info on building amenities
About the building
22 Hawthorne Street
22 Hawthorne Street, Brooklyn, NY 11225
10 units
3 stories
1931 built
For sale
1 available units for saleFor rent
0 available units for rentDocuments and permits
View documents and permitsProperty history
- Price Change: ↑ $150,000 (+12.5%) on 4/3/26
- Days on market: 20 days
| Date | Price | Event |
|---|---|---|
4/3/2026 | $1,350,000 | Price increased by 13% |
3/18/2026 | $1,200,000 | Listed by Invictus Property Advisors LLC |
Sign in to take a closer look at how this home compares to similar homes.
Explore Prospect Lefferts Gardens
Transit
| Location | Distance |
|---|---|
BQat Parkside Av | 0.17 miles |
BQSat Prospect Park | 0.29 miles |
BQat Church Av | 0.42 miles |
25at Winthrop St | 0.48 miles |
25at Sterling St | 0.61 miles |



















































































