View this home virtually
$3,000
For Rent
Base rent only. For total monthly price and additional fees, see .
No longer available 9/17/2024
- ft²
2 rooms
1 bed
1 bath
Co-op
- Yorkville
Under NYC law, you can't be charged a broker fee if you didn't hire a broker.
Listed By
This home has been saved by 184 users.
Listing by Compass, Corporate Broker, 110 5th Avenue, New York, NY 10011
Unavailable
No longer available on 9/17/2024
Days on market
85 days
Last price change
↓ $500 (-14.3%) on 8/6/24
About
FURNISHED APARTMENT!
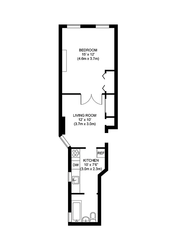
4FW is a meticulously designed 1-bedroom apartment in a prime Upper East Side neighborhood. Only three flights up, it features a windowed kitchen with a full-sized oven and dishwasher. A spacious living room gives way to a generously proportioned bedroom with a decorative fireplace. The bathroom has been renovated and includes a floating vanity.
Policies
Co-purchase allowed
Guarantors accepted
Pied-a-terre allowed
Home features
Dishwasher
Furnished
Hardwood floors
View
City
Building amenities
Services and facilities
Laundry in building
Live-in super
Wellness and recreation
No info on wellness and recreation
Shared outdoor space
No info on shared outdoor space
About the building
220 East 82nd Street
220 East 82nd Street, New York, NY 10028
20 units
5 stories
1910 built
Property history
Prices shown are base rent only. For total monthly price and additional fees, see .
| Date | Base rent | Event |
|---|---|---|
12/17/2024 | $3,000 | No longer available |
9/17/2024 | $3,000 | Temporarily off market |
8/6/2024 | $3,000 | Price decreased by 14% |
6/24/2024 | $3,500 | Listed by Compass |
9/19/2023 | $3,000 |
Past listing photos
Sign in to take a closer look at how this home compares to similar homes.
Explore Yorkville
Transit
| Location | Distance |
|---|---|
Qat 86th St | 0.12 miles |
456at 86th St | 0.25 miles |
6at 77th St | 0.27 miles |
Qat 72nd St | 0.5 miles |
Qat 96th St | 0.62 miles |
About Yorkville
Rental prices shown are base rent before any fees. Visit listings for cost and fees breakdown.
SalesMedian asking price
1 bed
$679K
RentalsMedian asking base rent
1 bed
$4,150
When George Washington commandeered the building site that would eventually become Gracie Mansion, he probably didn't imagine that this peaceful, riverside enclave would become the lively residential neighborhood it is today. Between then and now, Yorkville has seen a lot of change. Tony mansions and elevated trains went up at the turn of the century and then came down in the postwar years as a middle-class population moved in.
Now, the neighborhood is a haven of high-rise co-ops and condos interspersed with quiet rows of townhouses. The mixed housing stock makes Yorkville a practical choice for anyone seeking a slowed-down Manhattan vibe. Several avenues over from the throngs of Lexington and Third Avenues, Yorkville maintains a low-key, no-frills feel — it's a place where you'll find more diners and donut shops than upscale lounges and boutiques. This homey attitude is writ in its storefronts, where the food is kept simple and the owners are often from around the block.
Similar homes
Prices shown are base rent only and don't include any fees. Visit each listing to see a complete cost breakdown.
Similar Homes looks at ad spend and other factors like location, price, and number of beds and baths.






































































