$4,495
For Rent
Base rent only. For total monthly price and additional fees, see .
Rented 4/24/2025
- ft²
4 rooms
3 beds
1 bath
Rental unit
- Yorkville
Under NYC law, you can't be charged a broker fee if you didn't hire a broker.
Listed By
This home has been saved by 39 users.
Listing by Compass, Corporate Broker, 851 Madison Avenue, New York, NY 10021
Unavailable
Rented on 4/24/2025
Days on market
6 days
Last price change
No changes
About
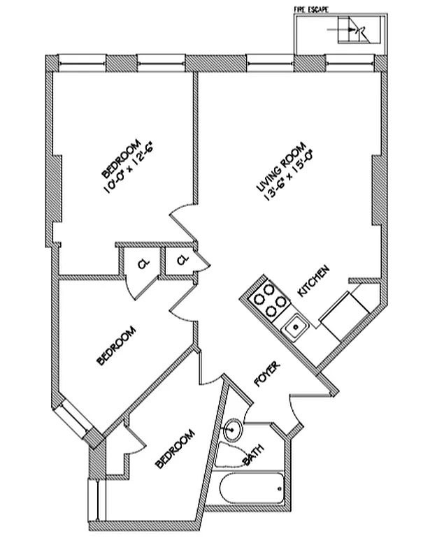
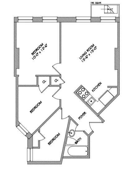
Spacious & Renovated 3-Bedroom in Prime UES
Don’t miss this renovated 3-bedroom, 1-bathroom home in a pet-friendly, well-maintained building with an elevator and laundry on-site!
Designed for both comfort and entertaining, this sunlit apartment boasts:
-Gourmet Kitchen – Custom cabinetry, Caesarstone countertops, stainless steel appliances & a dishwasher
-Generous Closet Space
-High Ceilings & Hardwood...
Policies
Pets allowed
Home features
No info on home features
Building amenities
Services and facilities
Elevator
Laundry in building
Wellness and recreation
No info on wellness and recreation
Shared outdoor space
No info on shared outdoor space
About the building
220 East 95th Street
220 East 95th Street, New York, NY 10128
24 units
5 stories
1910 built
Property history
Prices shown are base rent only. For total monthly price and additional fees, see .
| Date | Base rent | Event |
|---|---|---|
4/24/2025 | $4,495 | Rented by Compass |
4/18/2025 | $4,495 | Listed by Compass |
1/28/2025 | $3,995 | |
11/13/2024 | $3,995 | |
10/13/2022 | $4,903 |
Past listing photos
Sign in to take a closer look at how this home compares to similar homes.
Explore Yorkville
Transit
| Location | Distance |
|---|---|
Qat 96th St | under 500 feet |
6at 96th St | 0.17 miles |
Qat 86th St | 0.43 miles |
456at 86th St | 0.44 miles |
6at 103rd St | 0.45 miles |
About Yorkville
Rental prices shown are base rent before any fees. Visit listings for cost and fees breakdown.
SalesMedian asking price
3 beds
$2.9M
RentalsMedian asking base rent
3 beds
$7,972
When George Washington commandeered the building site that would eventually become Gracie Mansion, he probably didn't imagine that this peaceful, riverside enclave would become the lively residential neighborhood it is today. Between then and now, Yorkville has seen a lot of change. Tony mansions and elevated trains went up at the turn of the century and then came down in the postwar years as a middle-class population moved in.
Now, the neighborhood is a haven of high-rise co-ops and condos interspersed with quiet rows of townhouses. The mixed housing stock makes Yorkville a practical choice for anyone seeking a slowed-down Manhattan vibe. Several avenues over from the throngs of Lexington and Third Avenues, Yorkville maintains a low-key, no-frills feel — it's a place where you'll find more diners and donut shops than upscale lounges and boutiques. This homey attitude is writ in its storefronts, where the food is kept simple and the owners are often from around the block.
Similar homes
Prices shown are base rent only and don't include any fees. Visit each listing to see a complete cost breakdown.
Similar Homes looks at ad spend and other factors like location, price, and number of beds and baths.





















































































