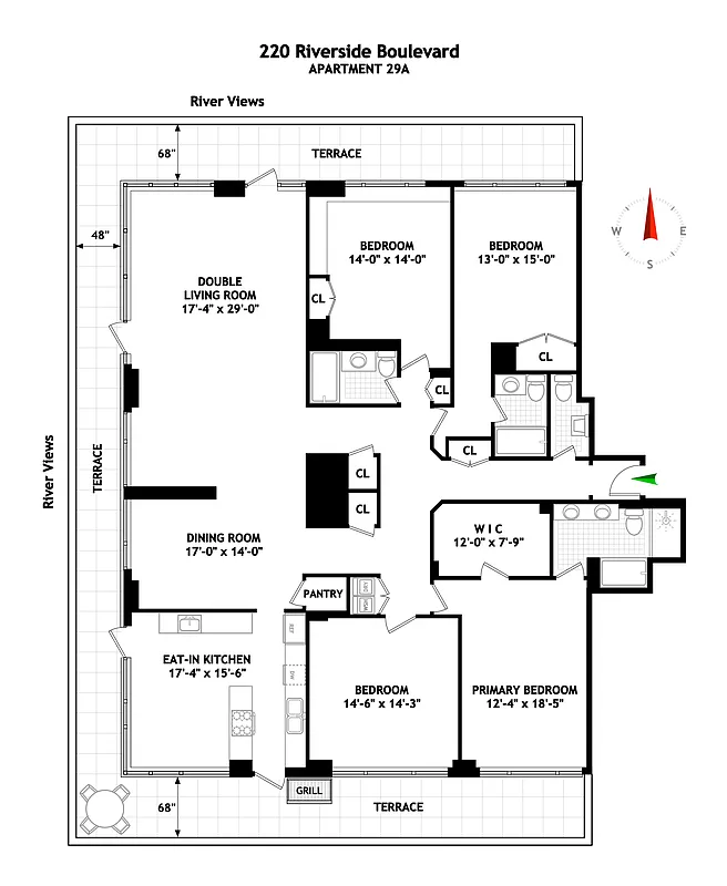
2,962 ft²
$1,924 per ft²
8 rooms
4 beds
3.5 baths
Condo
- Lincoln Square
Resale
reported sale
Sold on 11/25/2025
Not yet verified by closing records
Seller's agents
This home has been saved by 35 users.
Listing by Brown Harris Stevens, Real Estate Principal Office, 1934 Broadway, New York, NY 10023
Common charges
$4,742/mo
Estimated payment
Taxes
$6,293/mo
Tax abatement
No info
About
Seller’s agent
description
A rare find- NEWLY renovated, two corners with views and outdoor space off the right rooms!!
This beautiful, triple mint 4 bedroom home has everything - a great layout, stunning views, a fabulous renovation, and a wrap-around terrace!
Boasting nearly 3000 square feet inside with a grand living and entertaining space as well as private areas, Apartment 29A is perfect.
Policies
Sorry, policy info isn’t available right now. Check back later.
Home features
Central air
Dishwasher
Private outdoor space
Terrace
Washer/dryer
Building amenities
Services and facilities
Bike room
Concierge
Doorman
Full-time
Elevator
Live-in super
Parking
Wellness and recreation
Children's playroom
Gym
Swimming pool
Shared outdoor space
No info on shared outdoor space
About the building
220 Riverside Boulevard
220 Riverside Boulevard, New York, NY 10069
1 unit
48 stories
2000 built
For sale
4 available units for saleFor rent
3 available units for rentDocuments and permits
View documents and permitsProperty history
- Price Change: ↓ $1,000 (-0.0%) on 6/12/25
- Days on market: 217 daysThis is the number of days the listing has been on StreetEasy.
| Date | Price | Event |
|---|---|---|
11/25/2025 | $5,699,000 | Sold by Brown Harris Stevens |
9/15/2025 | $5,699,000 | In contract |
6/12/2025 | $5,699,000 | Price decreased by 0% |
6/9/2025 | $5,700,000 | Price decreased by 4% |
2/10/2025 | $5,950,000 | Listed by Brown Harris Stevens |
Past listing photos
Sign in to take a closer look at how this home compares to similar homes.
Explore Lincoln Square
Transit
| Location | Distance |
|---|---|
123at 72nd St | 0.29 miles |
1at 79th St | 0.46 miles |
1at 66th St–Lincoln Center | 0.48 miles |
BCat 72nd St | 0.63 miles |
BCat 81st St–Museum of Natural History | 0.74 miles |
About Lincoln Square
Rental prices shown are base rent before any fees. Visit listings for cost and fees breakdown.
SalesMedian asking price
4 beds
$7.3M
RentalsMedian asking base rent
4 beds
$26,550
Named after and defined by the Lincoln Center for the Performing Arts, Lincoln Square is home to the New York Philharmonic, the New York City Ballet and the Metropolitan Opera, among many other cultural institutions. The neighborhood blends the prewar architecture and and style of the Upper West Side with modern, tall residential buildings. Great subway access at Columbus Circle and proximity to Midtown make this neighborhood popular with those looking to be in the center of it all.
Learn more about Lincoln Square










































































































































































