$4,200
For Rent
Base rent only. For total monthly price and additional fees, see .
Rented 12/16/2025
- ft²
3 rooms
1 bed
1 bath
Rental unit
- Chelsea
Under NYC law, you can't be charged a broker fee if you didn't hire a broker.
Listed By
This home has been saved by 44 users.
Listing by Buchbinder & Warren, Limited Liability Broker, 1 Union Square West, New York, NY 10003
Unavailable
Rented on 12/16/2025
Days on market
10 days
Last price change
No changes
About
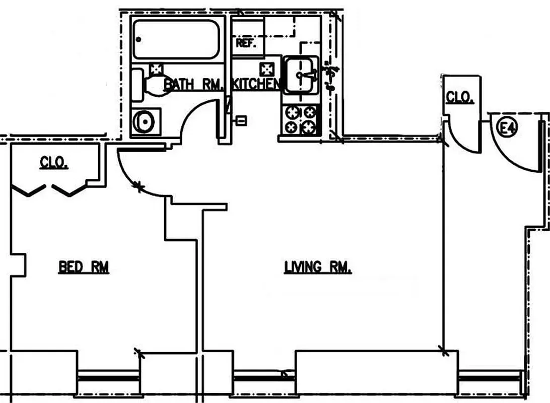
THE APARTMENT
Bright, renovated 1 bdrm/1bth
Charming & comfy apt. with open East city, sky & garden views
Modern, fully-appointed windowed kitchen and renovated three-piece bathroom
High ceilings and lovely hardwood flooring thruout
Spacious living/dining room with great linear wall space
Ample room for convenient home office spot
Heat & hot water covered in rent
THE BUILDING
Stately, pre-war, 10 story...
Policies
Sorry, policy info isn’t available right now. Check back later.
Home features
Dishwasher
Hardwood floors
View
Garden
Building amenities
Services and facilities
Elevator
Laundry in building
Live-in super
Wellness and recreation
No info on wellness and recreation
Shared outdoor space
Roof deck
About the building
222 West 15th Street
222 West 15th Street, New York, NY 10011
64 units
10 stories
1928 built
Property history
Prices shown are base rent only. For total monthly price and additional fees, see .
| Date | Base rent | Event |
|---|---|---|
12/16/2025 | $4,200 | Rented by Buchbinder & Warren |
12/7/2025 | $4,200 | Listed by Buchbinder & Warren |
11/25/2025 | $4,200 | Temporarily off market |
11/24/2025 | $4,200 | Listed by Buchbinder & Warren |
10/18/2016 | $3,400 |
Past listing photos
Sign in to take a closer look at how this home compares to similar homes.
Explore Chelsea
Transit
| Location | Distance |
|---|---|
FLM123at 14th St | under 500 feet |
ACELat 8th Av | under 500 feet |
ACELat 14th St | 0.11 miles |
1at 18th St | 0.17 miles |
PATHat 14th Street Station | 0.24 miles |
About Chelsea
Rental prices shown are base rent before any fees. Visit listings for cost and fees breakdown.
SalesMedian asking price
1 bed
$995K
RentalsMedian asking base rent
1 bed
$6,272
If you're looking for a staid, quiet place to live, Chelsea is not for you. Its thriving arts scene has always been a big draw for creative types. Not surprisingly, residents pay a high price to live in such a hip and happening part of Manhattan. The neighborhood has some of the most exclusive restaurants and bars in the city, and real estate prices are steep — especially for new condos along the High Line.
Slip down many of the side streets, however, and you're likely to find some beautiful and historic townhouses nestled gracefully within the neighborhood's hustle and bustle.
Similar homes
Prices shown are base rent only and don't include any fees. Visit each listing to see a complete cost breakdown.
Similar Homes looks at ad spend and other factors like location, price, and number of beds and baths.














































































