575 ft²
$800 per ft²
2 rooms
Studio
1 bath
Co-op
- Sutton Place
Resale
recorded sale
Sold on 11/9/2023
Verified by closing records
Last listed for $499,500
Seller's agent
This home has been saved by 74 users.
Listing by Hauseit LLC, Limited Liability Broker, 99 Wall Street, New York, NY 10005
Maintenance fees
$1,195/mo
Estimated payment
$3,625/mo
Legal disclaimerAll calculations are estimates provided by StreetEasy for informational purposes only. Actual amounts or financing terms may vary. Please contact your mortgage provider for specifics.Taxes
Included in maintenance fees
Tax abatement
No info
About
Seller’s agent
Buyer’s agent
description
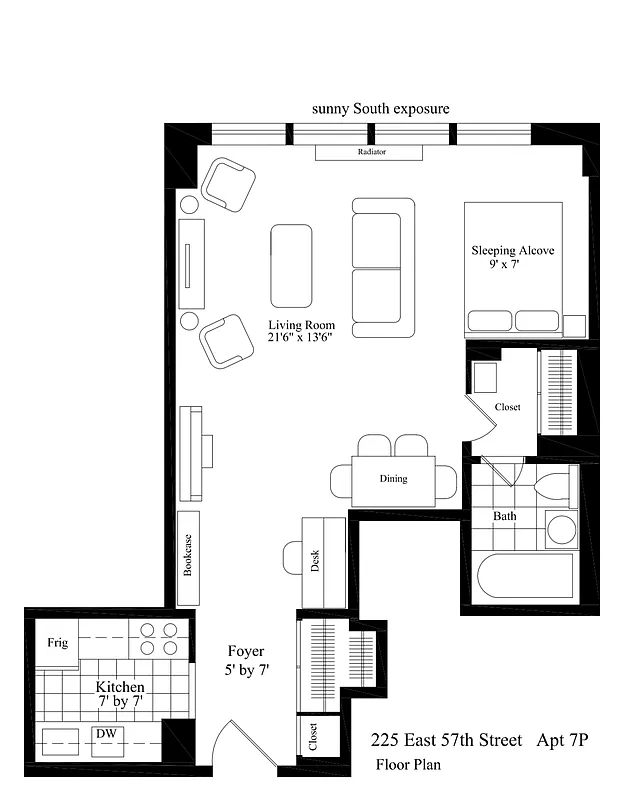
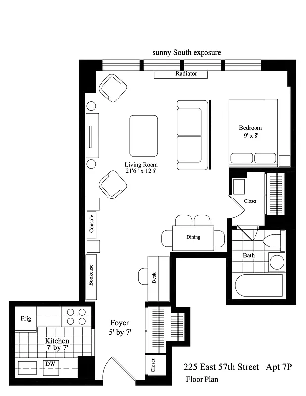
This spacious, quiet, sunny Alcove Studio easily converts into a junior one bedroom. A full wall of south facing windows illuminate the apartment with gorgeous private gardens below. There is a double depth 3 door closet in the foyer, as well as a separate dressing area with full closets next to the white tiled bathroom. There are hardwood floors throughout the living, dining office and foyer areas.
Policies
Co-purchase allowed
Parents buying allowed
Pets allowed
Cats only (no dogs)
Pied-a-terre allowed
Sublets allowed
Home features
Central air
Dishwasher
Hardwood floors
Building amenities
Services and facilities
Bike room
Doorman
Full-time
Elevator
Laundry in building
Live-in super
Package room
Parking
Garage
Storage space
Wellness and recreation
No info on wellness and recreation
Shared outdoor space
Roof deck
About the building
225 East 57th Street
225 East 57th Street, New York, NY 10022
260 units
20 stories
1964 built
For sale
5 available units for saleFor rent
0 available units for rentDocuments and permits
View documents and permitsProperty history
- Price Change: ↓ $10,500 (-2.1%) on 5/22/23
- Days on market: 183 daysThis is the number of days the listing has been on StreetEasy.
| Date | Price | Event |
|---|---|---|
11/9/2023 | $460,000 | Sold by Hauseit LLC |
11/1/2023 | $499,500 | In contract |
5/22/2023 | $499,500 | Price decreased by 2% |
5/2/2023 | $510,000 | Listed by Hauseit LLC |
11/10/2021 | $485,000 |
Past listing photos
Sign in to take a closer look at how this home compares to similar homes.
Explore Sutton Place
Transit
| Location | Distance |
|---|---|
NRW456at Lexington Av/59th St | 0.13 miles |
EM6at Lexington Av–53rd St | 0.22 miles |
FQat Lexington Av/63rd St | 0.32 miles |
EM6at 51st St | 0.34 miles |
EMat 5th Av–53rd St | 0.39 miles |











































































