$4,795
For Rent
Base rent only. For total monthly price and additional fees, see .
No longer available 10/21/2025
- ft²
2 rooms
1 bed
1 bath
Rental unit
- Lenox Hill
Under NYC law, you can't be charged a broker fee if you didn't hire a broker.
Listed By
Harlington
This home has been saved by 31 users.
Listing by Harlington | Brokerage Listing ID: 174557
Unavailable
No longer available on 10/21/2025
Days on market
22 days
Last price change
No changes
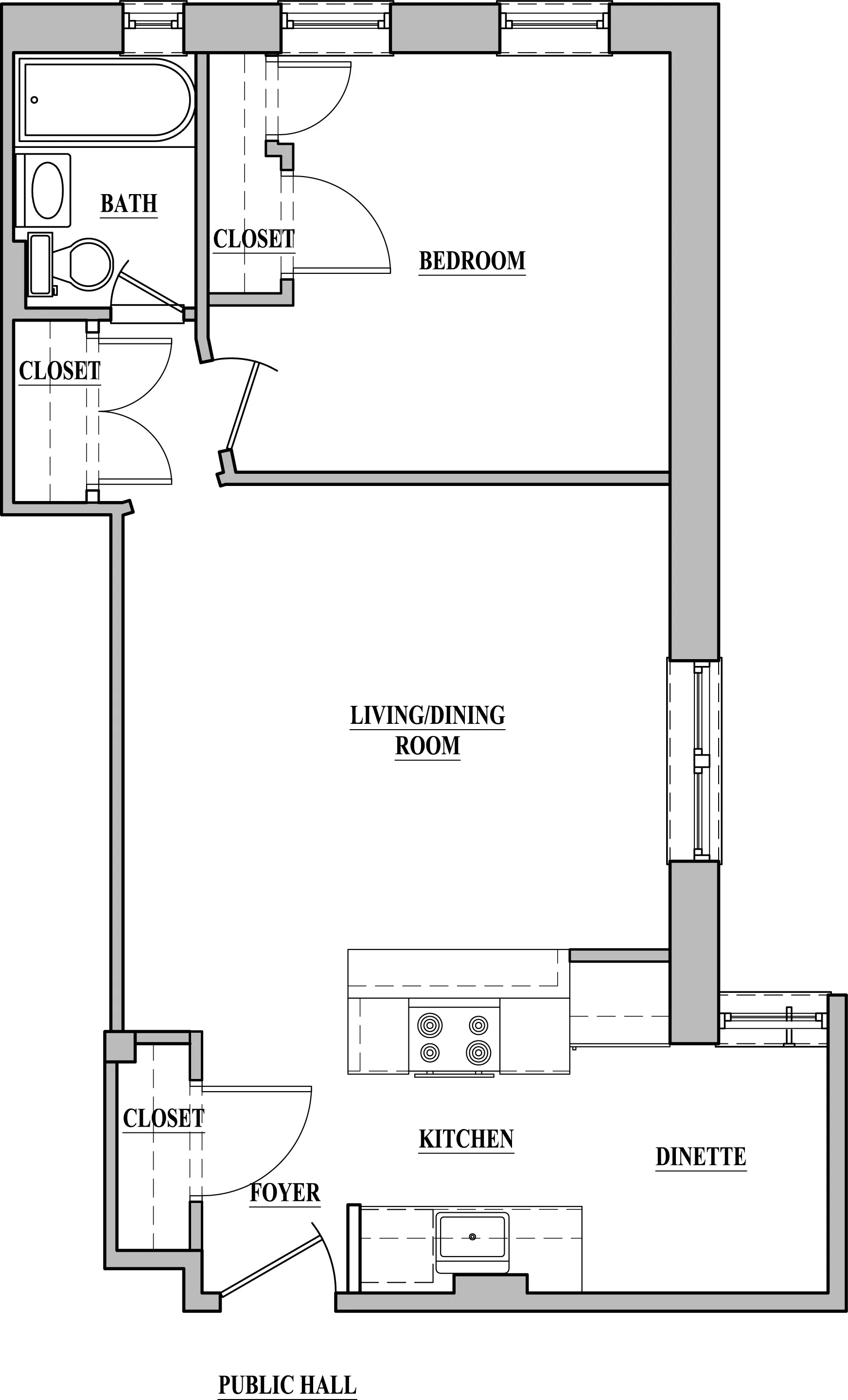
About
No Fee! Live in this spacious 1 bedroom on UES! Features separate gourmet kitchen equipped with custom cabinets, black granite countertops, and stainless steel appliaces including dishwasher.
VIRTUAL TOUR available on our website at harlington.com.
Great living room space. Queen size bedroom with spacious closet.
LED recessed lighting, high ceilings, and hardwood floors throughout.
Heat and hot water included.
Policies
Pets allowed
Home features
No info on home features
Building amenities
Services and facilities
Elevator
Laundry in building
Live-in super
Wellness and recreation
No info on wellness and recreation
Shared outdoor space
No info on shared outdoor space
About the building
226 East 70th Street
226 East 70th Street, New York, NY 10021
50 units
6 stories
1921 built
Property history
Prices shown are base rent only. For total monthly price and additional fees, see .
| Date | Base rent | Event |
|---|---|---|
10/21/2025 | $4,795 | No longer available |
9/29/2025 | $4,795 | Listed by Harlington |
10/20/2022 | $4,358 | |
10/12/2022 | $4,358 | |
4/21/2021 | $3,114 |
Sign in to take a closer look at how this home compares to similar homes.
Explore Lenox Hill
Transit
| Location | Distance |
|---|---|
Qat 72nd St | under 500 feet |
6at 68th St–Hunter College | 0.2 miles |
FQat Lexington Av/63rd St | 0.38 miles |
6at 77th St | 0.41 miles |
NRW456at Lexington Av/59th St | 0.48 miles |
Similar homes
Prices shown are base rent only and don't include any fees. Visit each listing to see a complete cost breakdown.
Similar Homes looks at ad spend and other factors like location, price, and number of beds and baths.














































































































