2,343 ft²
$1,344 per ft²
4 rooms
1 bed
1 bath
Condo
- Lenox Hill
Sponsor unit
Sponsor unitA unit being sold for the first time. It’s typically owned by the building. For condos, this is often the developer. For co-ops, this is often the building’s original owner before it went co-op.
reported sale
Sold on 4/21/2015
Not yet verified by closing records
Seller's agents
This home has been saved by 4 users.
Listing by Nest Seekers International, Limited Liability Broker, 110 5th Avenue, New York, NY 10011 | Brokerage Listing ID: 248948
Common charges
$2,370/mo
Estimated payment
$21,000/mo
Legal disclaimerAll calculations are estimates provided by StreetEasy for informational purposes only. Actual amounts or financing terms may vary. Please contact your mortgage provider for specifics.Taxes
$1,323/mo
Tax abatement
No info
About
Seller’s agent
description
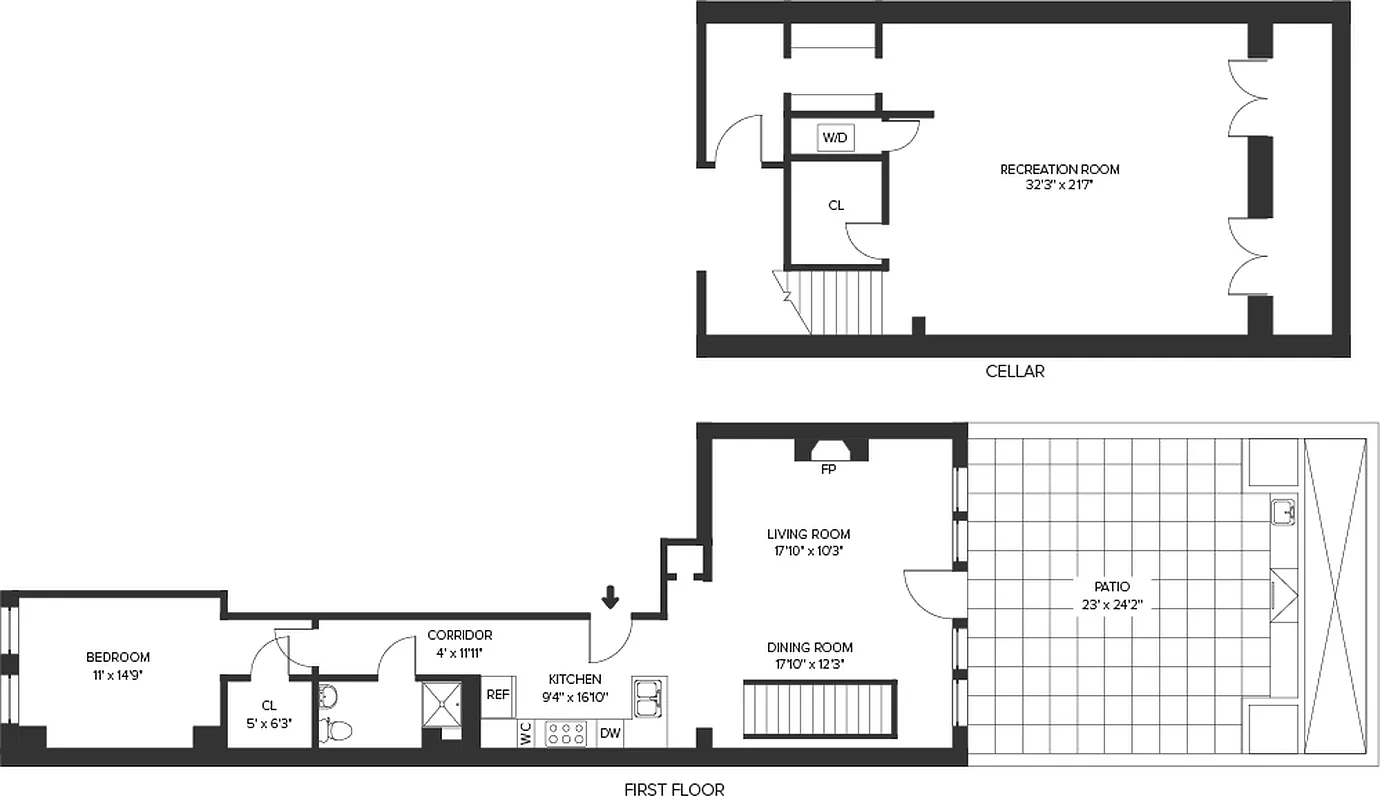
Newly constructed and never before lived in, this unique, full floor Maisonette duplex spans approximately 2,343 square feet and is accessible from the 1st floor. Currently configured as a one bedroom with home office, the openness of the apartment allows for potential customization to suit your needs. Upon entering, you are welcomed with an abundance of light through north and south facing floor-to-ceiling windows which draw your attention to the 500 square foot private outdoor patio.
Policies
Sorry, policy info isn’t available right now. Check back later.
Home features
Dishwasher
Fireplace
Private outdoor space
Garden, Patio
Washer/dryer
Building amenities
Services and facilities
Doorman
Elevator
Storage space
Wellness and recreation
Gym
Shared outdoor space
No info on shared outdoor space
About the building
230 East 63rd Street
230 East 63rd Street, New York, NY 10065
5 units
6 stories
2013 built
For sale
1 available units for saleFor rent
0 available units for rentDocuments and permits
View documents and permitsProperty history
- Price Change: No changes
- Days on market: 60 daysThis is the number of days the listing has been on StreetEasy.
| Date | Price | Event |
|---|---|---|
8/31/2018 | $3,150,000 | Sold by Nest Seekers International |
4/21/2015 | $3,150,000 | No longer available |
7/8/2014 | $3,150,000 | In contract |
5/9/2014 | $3,150,000 | Listed by Nest Seekers International |
Past listing photos
Sign in to take a closer look at how this home compares to similar homes.
Explore Lenox Hill
Transit
| Location | Distance |
|---|---|
NRW456at Lexington Av/59th St | 0.15 miles |
FQat Lexington Av/63rd St | 0.19 miles |
6at 68th St–Hunter College | 0.31 miles |
Qat 72nd St | 0.32 miles |
NRat 59th St | 0.47 miles |








































































































































