- ft²
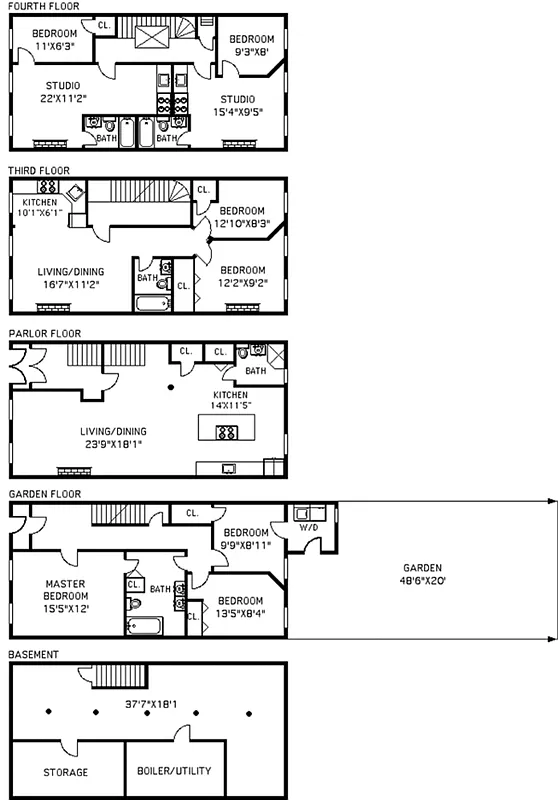
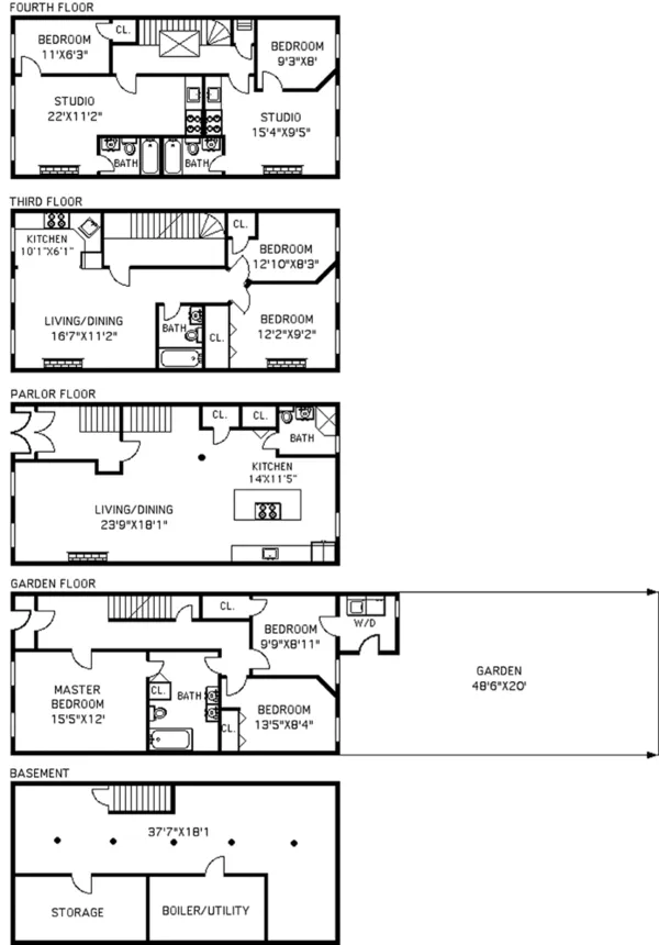
9 rooms
7 beds
5 baths
Four-family home
- Bedford-Stuyvesant
recorded sale
Sold on 1/14/2013
Verified by closing records
Last listed for $1,299,000
Seller's agents
This home has been saved by 21 users.
Listing by Brown Harris Stevens, Real Estate Principal Office, 100 Fifth Avenue, New York, NY 10011 | MLS #: 3397382
Common charges
Not applicable
Estimated payment
$6,689/mo
Legal disclaimerAll calculations are estimates provided by StreetEasy for informational purposes only. Actual amounts or financing terms may vary. Please contact your mortgage provider for specifics.Taxes
No info
Tax abatement
No info
About
Seller’s agent
description
CONTRACT SIGNED
Rare Bedford-Stuyvesant Opportunity!
This 20' wide Bedford-Stuyvesant townhouse has everything on your checklist for the perfect investment or turn key home! It has been completely restored from the inside out over the last eight years with new electric, plumbing, roofing, floors, lighting, bathrooms, and appliances. Original details remain, including SIX ornate marble mantles, stair banisters, and two sets of gorgeous arch double front doors.
Policies
Sorry, policy info isn’t available right now. Check back later.
Home features
No info on home features
Building amenities
Services and facilities
Storage space
Wellness and recreation
Hot tub
Shared outdoor space
No info on shared outdoor space
About the building
233 Madison Street
233 Madison Street, Brooklyn, NY 11216
4 units
3 stories
1910 built
For sale
0 available units for saleFor rent
0 available units for rentDocuments and permits
View documents and permitsProperty history
- Price Change: ↑ $199,000 (+13.3%) on 9/7/12
- Days on market: 53 daysThis is the number of days the listing has been on StreetEasy.
| Date | Price | Event |
|---|---|---|
4/1/2013 | $0 | |
1/14/2013 | $1,245,000 | Sold by Brown Harris Stevens |
10/23/2012 | $1,299,000 | In contract |
9/7/2012 | $1,299,000 | Price increased by 18% |
8/31/2012 | $1,100,000 | Listed by Brown Harris Stevens |
Past listing photos
Sign in to take a closer look at how this home compares to similar homes.
Explore Bedford-Stuyvesant
Transit
| Location | Distance |
|---|---|
ACat Nostrand Av | 0.31 miles |
Gat Bedford–Nostrand Avs | 0.34 miles |
ACSat Franklin Av | 0.41 miles |
ASat Franklin Av | 0.42 miles |
LIRRat Nostrand Avenue | 0.47 miles |
About Bedford-Stuyvesant
Rental prices shown are base rent before any fees. Visit listings for cost and fees breakdown.
SalesMedian asking price
7 beds
$3.54M
RentalsMedian asking base rent
7 beds
$10,816
Bedford-Stuyvesant is a vast Brooklyn neighborhood filled with historic brownstones. Fans of Victorian architecture will appreciate the striking abodes in the leafy historic district.
Learn more about Bedford-Stuyvesant










































































































