- ft²
4 rooms
2 beds
2 baths
Co-op
- Yorkville
Resale
recorded sale
Sold on 2/23/2023
Verified by closing records
Last listed for $1,325,000
Seller's agents
This home has been saved by 94 users.
Listing by Brown Harris Stevens, Real Estate Principal Office, 1934 Broadway, New York, NY 10023
Maintenance fees
$1,621/mo
Estimated payment
$7,902/mo
Legal disclaimerAll calculations are estimates provided by StreetEasy for informational purposes only. Actual amounts or financing terms may vary. Please contact your mortgage provider for specifics.Taxes
Included in maintenance fees
Tax abatement
No info
About
Sellerâs agent
Buyerâs agent
description
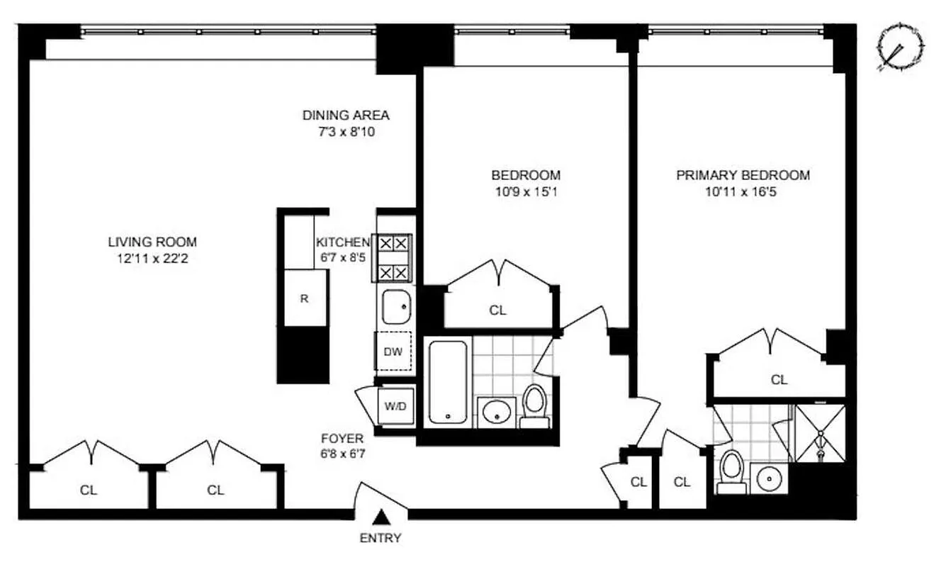
Apartment 7J is a renovated two-bedroom, two-bathroom home with an exceptionally low maintenance of $1,621 per month. It has an expansive living and dining space, a 16-foot wall of windows and an open eastern view with glorious morning sunlight. The gracious layout features an entrance foyer, plentiful closet space and a formal dining area that is often converted to a third bedroom.
Policies
Pets allowed
Cats and dogs allowed
Home features
Washer/dryer
Building amenities
Services and facilities
Bike room
Concierge
Doorman
Full-time
Elevator
Laundry in building
Live-in super
Parking
Garage
Wheelchair access
Wellness and recreation
No info on wellness and recreation
Shared outdoor space
Roof deck
About the building
239 East 79th Street
239 East 79th Street, New York, NY 10075
208 units
18 stories
1957 built
For sale
8 available units for saleFor rent
0 available units for rentDocuments and permits
View documents and permitsProperty history
- Price Change: No changes
- Days on market: 37 daysThis is the number of days the listing has been on StreetEasy.
| Date | Price | Event |
|---|---|---|
2/23/2023 | $1,300,000 | Sold by Brown Harris Stevens |
10/27/2022 | $1,325,000 | In contract |
9/20/2022 | $1,325,000 | Listed by Brown Harris Stevens |
2/15/2008 | $1,250,000 | |
4/29/2008 | $1,395,000 |
Past listing photos
Sign in to take a closer look at how this home compares to similar homes.
Explore Yorkville
Transit
| Location | Distance |
|---|---|
Qat 86th St | 0.21 miles |
6at 77th St | 0.23 miles |
Qat 72nd St | 0.37 miles |
456at 86th St | 0.39 miles |
6at 68th StâHunter College | 0.61 miles |
About Yorkville
Rental prices shown are base rent before any fees. Visit listings for cost and fees breakdown.
SalesMedian asking price
2 beds
$1.47M
RentalsMedian asking base rent
2 beds
$5,495
When George Washington commandeered the building site that would eventually become Gracie Mansion, he probably didn't imagine that this peaceful, riverside enclave would become the lively residential neighborhood it is today. Between then and now, Yorkville has seen a lot of change. Tony mansions and elevated trains went up at the turn of the century and then came down in the postwar years as a middle-class population moved in.
Now, the neighborhood is a haven of high-rise co-ops and condos interspersed with quiet rows of townhouses. The mixed housing stock makes Yorkville a practical choice for anyone seeking a slowed-down Manhattan vibe. Several avenues over from the throngs of Lexington and Third Avenues, Yorkville maintains a low-key, no-frills feel â it's a place where you'll find more diners and donut shops than upscale lounges and boutiques. This homey attitude is writ in its storefronts, where the food is kept simple and the owners are often from around the block.








































































































