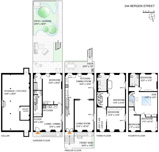
3,200 ft²
$1,185 per ft²
12 rooms
6 beds
3.5 baths
House
- Boerum Hill
reported sale
Sold on 5/21/2014
Not yet verified by closing records
Seller's agent
This home has been saved by 19 users.
Listing by Corcoran, Limited Liability Broker, 590 Madison Avenue, New York, NY 10022 | Brokerage Listing ID: 3238010
Common charges
Not applicable
Estimated payment
$18,999/mo
Legal disclaimerAll calculations are estimates provided by StreetEasy for informational purposes only. Actual amounts or financing terms may vary. Please contact your mortgage provider for specifics.Taxes
$157/mo
Tax abatement
No info
About
Seller’s agent
description
This stately, circa 1860s Boerum Hill brick townhouse promises to please with four floors for expansive living and a 49 foot south-facing garden. Tons of period details including period moldings, original wood floors, pocket doors and shutters and five original marble fireplaces. Currently configured as an owners triplex with a garden rental (delivered vacant) that can easily be combined back to make a four story home of approximately 3,200 square feet.
Policies
Sorry, policy info isn’t available right now. Check back later.
Home features
No info on home features
Building amenities
No info on building amenities
About the building
244 Bergen Street
244 Bergen Street, Brooklyn, NY 11217
1 unit
3 stories
1900 built
For sale
0 available units for saleFor rent
0 available units for rentDocuments and permits
View documents and permitsProperty history
- Price Change: No changes
- Days on market: 14 daysThis is the number of days the listing has been on StreetEasy.
| Date | Price | Event |
|---|---|---|
12/17/2025 | $5,700,000 | |
10/6/2025 | $5,995,000 | |
9/2/2025 | $5,995,000 | Price decreased by 8% |
9/2/2025 | $6,500,000 | |
8/4/2025 | $6,500,000 |
Past listing photos
Sign in to take a closer look at how this home compares to similar homes.
Explore Boerum Hill
Transit
| Location | Distance |
|---|---|
BDNQR2345at Atlantic Av–Barclays Ctr | 0.29 miles |
ACGat Hoyt & Schermerhorn | 0.29 miles |
2345at Nevins St | 0.34 miles |
FGat Bergen St | 0.35 miles |
23at Hoyt St | 0.41 miles |
About Boerum Hill
Rental prices shown are base rent before any fees. Visit listings for cost and fees breakdown.
SalesMedian asking price
6 beds
$3.6M
Energetic and inviting, Boerum Hill continues its run as one of New York City's most desirable neighborhoods, all while remaining a secret quietly shared amongst its happy residents. Its appeal and vibrancy stem from its housing stock. Handsome Greek revival and Italianate townhouses line the wide, tree-lined streets. These beautiful brick and limestone buildings have long been a mecca for Brooklynites seeking an enclave close to Downtown Brooklyn and lower Manhattan — but far from crowds and highrises.
Main drags like Bergen Street, Atlantic Avenue, and Smith Street are peppered with charming boutiques like Collier West in addition to welcoming cafes, bars, and restaurants, including Rucola, French Louie, and Bacchus, to name a few. Fans of new construction will find new condo developments too. Saint Marks Place, The Hendrick, The Boerum, and The Bergen have expanded buyers' opportunities. Renters will also find plenty of options here in a broad range of prices, from the genuinely affordable to the luxurious.







































































































































