$8,400
for rent
Base rent only. For total monthly price and additional fees, see .
1,850 ft²
$54 per ft²
5 rooms
2 beds
2.5 baths
Three-family home
- Park Slope
Under NYC law, you can't be charged a broker fee if you didn't hire a broker.
Listed by
This home has been saved by 45 users.
Listing by Keller Williams Realty Empire, Limited Liability Broker, 8508 3rd Avenue, Brooklyn, NY 11209
Available
Available now
Days on market
36 days
Last price change
↓ $350 (-4.0%) on 5/4/26
About
Fully renovated duplex in a classic brick townhouse, beautifully blending modern upgrades with preserved original details. This stunning home features an in-unit washer and dryer, as well as split-system air conditioning for year-round comfort.
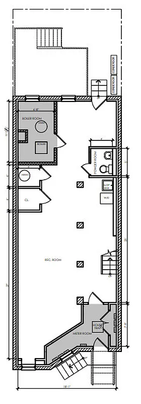
The residence offers two spacious bedrooms plus a fully finished recreation room—perfect for a home office, guest space, or additional living area (please refer to the floor plan for layout details).
Policies
Sorry, policy info isn’t available right now. Check back later.
Home features
Central air
Dishwasher
Hardwood floors
Private outdoor space
Garden, Terrace
Washer/dryer
Building amenities
No info on building amenities
About the building
249 11th Street
249 11th Street, Brooklyn, NY 11215
3 units
3 stories
1899 built
Property history
Prices shown are base rent only. For total monthly price and additional fees, see .
| Date | Base rent | Event |
|---|---|---|
5/4/2026 | $8,400 | Price decreased by 4% |
4/20/2026 | $8,750 | Price decreased by 5% |
4/13/2026 | $9,200 | Price decreased by 3% |
4/6/2026 | $9,500 | Listed by Keller Williams Realty Empire |
12/6/2023 | $7,495 |
Past listing photos
Sign in to take a closer look at how this home compares to similar homes.
Explore Park Slope
Transit
| Location | Distance |
|---|---|
Fat 4th Av | under 500 feet |
FGRat 9th St | under 500 feet |
Rat Prospect Av | 0.32 miles |
Fat 7th Av | 0.42 miles |
FGRat Smith–9th St | 0.58 miles |
About Park Slope
Rental prices shown are base rent before any fees. Visit listings for cost and fees breakdown.
SalesMedian asking price
2 beds
$1.4M
RentalsMedian asking base rent
2 beds
$4,995
Park Slope has a tranquil, easygoing vibe and can almost feel suburban. Strollers and children of all ages are a constant presence on sidewalks, as are shoppers patronizing local boutiques and dog walkers heading up to the park. Residents are Brooklynites through and through and tend to be socially conscious, artistically minded, and committed to their community. At night, a casual restaurant scene comes alive. For anyone looking for a night out, there are plenty of beer gardens and wine bars to patronize, especially in the South Slope, but don't go looking for dance clubs.
Learn more about Park SlopeSimilar homes
Prices shown are base rent only and don't include any fees. Visit each listing to see a complete cost breakdown.
Similar Homes looks at ad spend and other factors like location, price, and number of beds and baths.
















































































































































