2,000 ft²
$297 per ft²
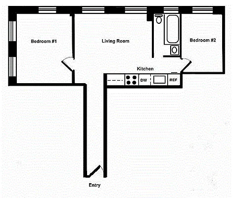
16 rooms
2 beds
1 bath
Co-op
- Lower East Side
Sponsor unit
Sponsor unitA unit being sold for the first time. It’s typically owned by the building. For condos, this is often the developer. For co-ops, this is often the building’s original owner before it went co-op.
recorded sale
Sold on 10/31/2016
Verified by closing records
Last listed for $495,000
Seller's agent
FirstService Realty (legacy)
This home has been saved by 46 users.
Listing by FirstService Realty (legacy), Corporate Broker | Brokerage Listing ID: 549009
Maintenance fees
$3,594/mo
Estimated payment
$6,143/mo
Legal disclaimerAll calculations are estimates provided by StreetEasy for informational purposes only. Actual amounts or financing terms may vary. Please contact your mortgage provider for specifics.Taxes
Included in maintenance fees
Tax abatement
No info
About
Seller’s agent
description
***INVESTORS ONLY***
FirstService Realty is pleased to offer for sale 4 Unsold Sponsor units at 249 Eldridge Street in the Lower East Side on the southwest corner of East Houston and Eldridge Street. 249 Eldridge Street is a 25 unit, 6 story walk-up cooperative apartment building. These units are occupied by Rent Stabilized tenants. This is an excellent opportunity for an investor to purchase four apartments for the price of one.
Policies
Gifts allowed
Pets allowed
Cats and dogs allowed
Sublets allowed
Home features
No info on home features
Building amenities
No info on building amenities
About the building
249 Eldridge Street
249 Eldridge Street, New York, NY 10002
25 units
6 stories
1900 built
For sale
1 available units for saleFor rent
1 available units for rentDocuments and permits
View documents and permitsProperty history
- Price Change: No changes
- Days on market: 151 daysThis is the number of days the listing has been on StreetEasy.
| Date | Price | Event |
|---|---|---|
10/31/2016 | $595,000 | Sold by FirstService Realty (legacy) |
6/30/2016 | $495,000 | In contract |
6/13/2016 | $495,000 | Listed by FirstService Realty (legacy) |
Past listing photos
Sign in to take a closer look at how this home compares to similar homes.
Explore Lower East Side
Transit
| Location | Distance |
|---|---|
Fat 2nd Av | under 500 feet |
JZat Bowery | 0.27 miles |
FJMZat Delancey St | 0.29 miles |
BDFM6at Bleecker St | 0.31 miles |
FJMZat Essex St | 0.32 miles |
About Lower East Side
Rental prices shown are base rent before any fees. Visit listings for cost and fees breakdown.
SalesMedian asking price
2 beds
$1.5M
RentalsMedian asking base rent
2 beds
$5,220
The narrow streets of the Lower East Side were once lined with tenement buildings, shirt factories and bialy shops. Although a few vestiges of the neighborhood's immigrant heritage remain, many of the tenement buildings have been updated and now offer relatively affordable rental options to young New Yorkers looking to live right in the thick of Downtown Manhattan.
There's no getting around it - the LES is a major nightlife destination. In this part of the city, last call is late and often negotiable -- especially if you're a regular. On weekend nights, the neighborhood is packed as crowds overflow from the local bars and take to the streets in search of a late-night falafel fix before heading onto the next party. During the day, the neighborhood chills out as residents nurse their hangovers or head to work slowly after stopping at one of the area's many trendy juice bars or coffee shops.





























































































