$49,999,000
For Sale
No longer available 4/20/2014
3,582 ft²
$13,958 per ft²
7 rooms
4 beds
3.5 baths
Condo
- Lincoln Square
Seller's agents
This home has been saved by 7 users.
Listing by Sotheby's International Realty, Corporate Broker, 650 Madison Avenue, New York, NY 10022 | Brokerage Listing ID: 0019153
Common charges
$7,056/mo
Estimated payment
$270,569/mo
Legal disclaimerAll calculations are estimates provided by StreetEasy for informational purposes only. Actual amounts or financing terms may vary. Please contact your mortgage provider for specifics.Taxes
$4,079/mo
Tax abatement
No info
About
Seller’s agent
description
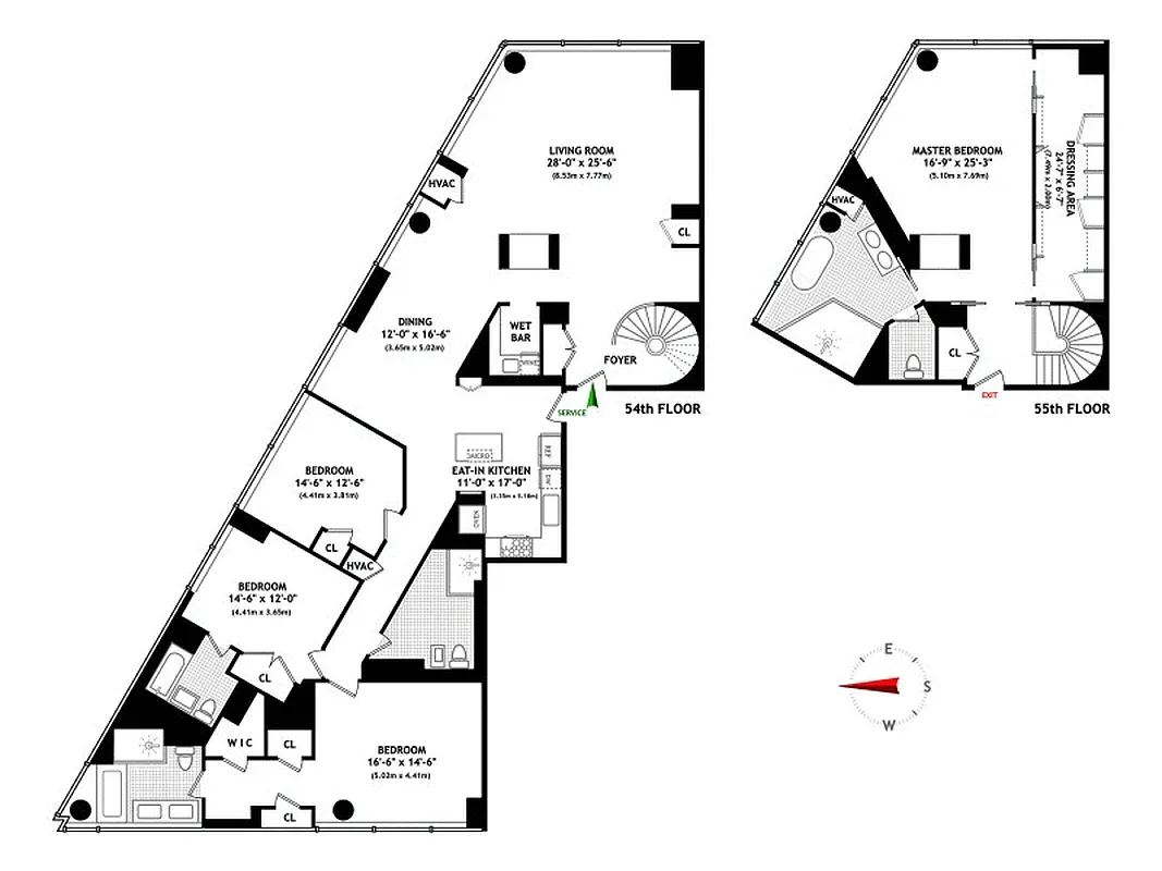
Located in the famed Time Warner building this one of a kind home is absolutely spectacular.
This nine into eight-room home has been totally reconfigured and renovated to the highest standards.
One enters the home into a double living room and formal dining room all on Central Park with jet liner views of the city and Hudson River.
A grand entertaining eat in kitchen also has Park and city vie
Policies
Pets allowed
Cats and dogs allowed
Home features
No info on home features
Building amenities
Services and facilities
Concierge
Doorman
Full-time
Elevator
Laundry in building
Live-in super
Wellness and recreation
Gym
Swimming pool
Shared outdoor space
No info on shared outdoor space
About the building
25 and 80 Columbus
25 Columbus Circle, New York, NY 10019
135 units
56 stories
- built
For sale
8 available units for saleFor rent
3 available units for rentDocuments and permits
View documents and permitsProperty history
- Price Change: ↓ $1,000 (-0.0%) on 12/26/13
- Days on market: 180 daysThis is the number of days the listing has been on StreetEasy.
| Date | Price | Event |
|---|---|---|
4/20/2014 | $49,999,000 | No longer available |
12/26/2013 | $49,999,000 | Price decreased by 0% |
10/22/2013 | $50,000,000 | Listed by Sotheby's International Realty |
Sign in to take a closer look at how this home compares to similar homes.
Explore Lincoln Square
Transit
| Location | Distance |
|---|---|
ABCD1at 59th St–Columbus Circle | under 500 feet |
NRWat 57th St–7th Av | 0.2 miles |
BDEat 7th Av | 0.33 miles |
1at 66th St–Lincoln Center | 0.36 miles |
Fat 57th St | 0.37 miles |
About Lincoln Square
Rental prices shown are base rent before any fees. Visit listings for cost and fees breakdown.
SalesMedian asking price
4 beds
$8M
RentalsMedian asking base rent
4 beds
$26,775
Named after and defined by the Lincoln Center for the Performing Arts, Lincoln Square is home to the New York Philharmonic, the New York City Ballet and the Metropolitan Opera, among many other cultural institutions. The neighborhood blends the prewar architecture and and style of the Upper West Side with modern, tall residential buildings. Great subway access at Columbus Circle and proximity to Midtown make this neighborhood popular with those looking to be in the center of it all.
Learn more about Lincoln Square






































































































































































































































