$6,900
For Rent
Base rent only. For total monthly price and additional fees, see .
Rented 11/19/2021
1,326 ft²
$62 per ft²
5 rooms
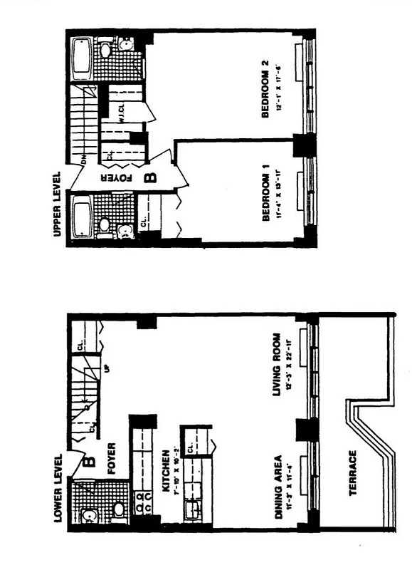
2 beds
2.5 baths
Condo
- Upper West Side
Under NYC law, you can't be charged a broker fee if you didn't hire a broker.
Listed By
This home has been saved by 64 users.
Listing by Compass, Corporate Broker, 1 Rockefeller Plaza, New York, NY 10020
Unavailable
Rented on 11/19/2021
Days on market
15 days
Last price change
No changes
About
Gorgeous and spacious 2 bedroom, 2.5 bathroom Penthouse for rent with open views and spectacular 155 sq. ft. terrace.
This home has been renovated with beautiful hard wood floors, custom lighting, modern bathrooms and customized storage. The large living and dining rooms look onto the huge terrace, perfect for grilling, gardening and sunbathing. Open kitchen with stainless steel appliances and plenty of cabinet space.
Policies
Pets allowed
Cats and dogs allowed
Home features
Private outdoor space
Terrace
View
City
Building amenities
Services and facilities
Concierge
Doorman
Elevator
Laundry in building
Wellness and recreation
Gym
Media room
Swimming pool
Shared outdoor space
Roof deck
About the building
250 West 90th Street
250 West 90th Street, New York, NY 10024
157 units
22 stories
1985 built
Property history
Prices shown are base rent only. For total monthly price and additional fees, see .
| Date | Base rent | Event |
|---|---|---|
11/19/2021 | $6,900 | Rented by Compass |
11/4/2021 | $6,900 | Listed by Compass |
11/19/2020 | $7,000 | |
9/2/2020 | $7,000 |
Past listing photos
Sign in to take a closer look at how this home compares to similar homes.
Explore Upper West Side
Transit
| Location | Distance |
|---|---|
1at 86th St | 0.14 miles |
123at 96th St | 0.18 miles |
BCat 86th St | 0.45 miles |
1at 79th St | 0.53 miles |
BCat 96th St | 0.54 miles |
About Upper West Side
Rental prices shown are base rent before any fees. Visit listings for cost and fees breakdown.
SalesMedian asking price
2 beds
$1.55M
RentalsMedian asking base rent
2 beds
$6,250
Sandwiched between two beautiful parks, the Upper West Side is one of the greenest spots in Manhattan. For that reason, it is a perennial favorite. The Upper West Side is relaxed, but never dull. There are plenty of low-key bars and restaurants to frequent along Amsterdam Avenue, and Broadway is an always-bustling commercial center. The wide, tree-lined streets still boast many mom-and-pop stores. Less posh than the Upper East Side, it is more easily accessible by public transportation, and real estate prices are just as, if not more, expensive.
Learn more about Upper West SideSimilar homes
Prices shown are base rent only and don't include any fees. Visit each listing to see a complete cost breakdown.
Similar Homes looks at ad spend and other factors like location, price, and number of beds and baths.



























































































