$2,450
For Rent
Base rent only. For total monthly price and additional fees, see .
Rented 12/21/2017
- ft²
3 rooms
1 bed
1 bath
Rental unit
- Two Bridges
Under NYC law, you can't be charged a broker fee if you didn't hire a broker.
Listed By
This home has been saved by 39 users.
Listing by Compass, Corporate Broker, 110 5th Avenue, New York, NY 10011
Searching with a housing voucher, like Section 8?
Unavailable
Rented on 12/21/2017
Days on market
13 days
Last price change
No changes
About
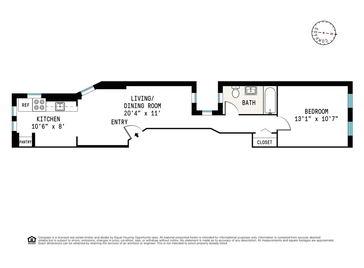
MASSIVE 1BR in BRAND NEW condition!
* XL living/dining room
* KING-SiZE BR
* ALL NEW windowed eat-in kitchen
*Sleek bath with full TUB
*Inlaid wood flooring
*BRIGHT natural sunlight and VIEWS through South, North and West facing WINDOWS
Prime location convenient to transportation, multiple galleries and endless shopping, dining, nightlife options.
NO FEE! Email to arrange a private viewing.
Policies
Sorry, policy info isn’t available right now. Check back later.
Home features
No info on home features
Building amenities
No info on building amenities
About the building
251 East Broadway
251 East Broadway, New York, NY 10002
11 units
5 stories
1910 built
For rent
0 available units for rentProperty history
Prices shown are base rent only. For total monthly price and additional fees, see .
| Date | Base rent | Event |
|---|---|---|
12/21/2017 | $2,450 | Rented by Compass |
12/8/2017 | $2,450 | Listed by Compass |
Past listing photos
Sign in to take a closer look at how this home compares to similar homes.
Explore Two Bridges
Transit
| Location | Distance |
|---|---|
Fat East Broadway | 0.22 miles |
FJMZat Essex St | 0.3 miles |
FJMZat Delancey St | 0.31 miles |
BDat Grand St | 0.49 miles |
JZat Bowery | 0.57 miles |
Similar homes
Prices shown are base rent only and don't include any fees. Visit each listing to see a complete cost breakdown.
Similar Homes looks at ad spend and other factors like location, price, and number of beds and baths.























































































