- ft²
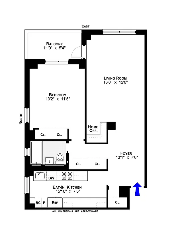
3 rooms
1 bed
1 bath
Co-op
- Lower East Side
recorded sale
Sold on 3/2/2017
Verified by closing records
Last listed for $829,000
Seller's agents
This home has been saved by 51 users.
Listing by Halstead Real Estate, 100 Fifth Avenue, New York, NY 10011 | MLS #: 162044
Maintenance fees
$741/mo
Estimated payment
$4,775/mo
Legal disclaimerAll calculations are estimates provided by StreetEasy for informational purposes only. Actual amounts or financing terms may vary. Please contact your mortgage provider for specifics.Taxes
Included in maintenance fees
Tax abatement
No info
About
Seller’s agent
description
Contract Signed.
FULLY RENOVATED 1BR/BALC W/ RIVER VIEWS!
Spacious & fully renovated 1BR on the 17th floor! Views to East River and beyond and your own private balcony. Windowed kitchen with caesarstone quartz reflective white counters, European-style grey gloss cabinetry with undermount lighting, mosaic tile backsplash, and stainless appliances including an Electrolux five burner stainless stove, Electrolux microwave hood, and Whirlpool double door fridge
Policies
Co-purchase allowed
Gifts allowed
Guarantors accepted
Parents buying allowed
Pets allowed
Cats and dogs allowed
Pied-a-terre allowed
Sublets allowed
Home features
Private outdoor space
Balcony
Building amenities
Services and facilities
Bike room
Doorman
Full-time
Elevator
Live-in super
Parking
Garage
Storage space
Wellness and recreation
Gym
Shared outdoor space
No info on shared outdoor space
About the building
264-268 East Broadway - Building 1
264 East Broadway, New York, NY 10002
Complex:
Seward Park Housing Cooperative432 units
- stories
- built
For sale
14 available units for saleFor rent
0 available units for rentDocuments and permits
View documents and permitsProperty history
- Price Change: No changes
- Days on market: 139 daysThis is the number of days the listing has been on StreetEasy.
| Date | Price | Event |
|---|---|---|
3/2/2017 | $808,000 | Sold by Halstead Real Estate |
2/8/2017 | $829,000 | No longer available |
12/19/2016 | $829,000 | In contract |
8/2/2016 | $829,000 | Listed by Halstead Real Estate |
Past listing photos
Sign in to take a closer look at how this home compares to similar homes.
Explore Lower East Side
Transit
| Location | Distance |
|---|---|
Fat East Broadway | 0.22 miles |
FJMZat Essex St | 0.24 miles |
FJMZat Delancey St | 0.25 miles |
BDat Grand St | 0.45 miles |
JZat Bowery | 0.52 miles |
About Lower East Side
Rental prices shown are base rent before any fees. Visit listings for cost and fees breakdown.
SalesMedian asking price
1 bed
$825K
RentalsMedian asking base rent
1 bed
$3,847
The narrow streets of the Lower East Side were once lined with tenement buildings, shirt factories and bialy shops. Although a few vestiges of the neighborhood's immigrant heritage remain, many of the tenement buildings have been updated and now offer relatively affordable rental options to young New Yorkers looking to live right in the thick of Downtown Manhattan.
There's no getting around it - the LES is a major nightlife destination. In this part of the city, last call is late and often negotiable -- especially if you're a regular. On weekend nights, the neighborhood is packed as crowds overflow from the local bars and take to the streets in search of a late-night falafel fix before heading onto the next party. During the day, the neighborhood chills out as residents nurse their hangovers or head to work slowly after stopping at one of the area's many trendy juice bars or coffee shops.







































































































































