$7,200
For Rent
Base rent only. For total monthly price and additional fees, see .
2,000 ft²
$43 per ft²
6 rooms
4 beds
2.5 baths
Condo
- South Harlem
Under NYC law, you can't be charged a broker fee if you didn't hire a broker.
Listed By
This home has been saved by 1 user.
Listing by Brown Harris Stevens, Real Estate Principal Office, 2169 Frederick Douglas Boulevard, New York, NY 10026
Available
3/1/2026
Days on market
Listed today
Last price change
No changes
About
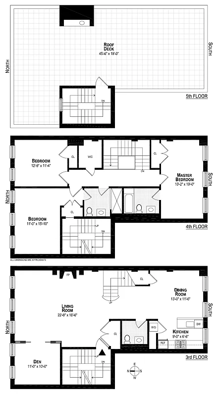
Rare Harlem Carriage House: 4BR Flex + Private Roof Deck
A truly special Harlem home—this converted Carriage House offers approximately 2,000 square feet of character-rich living and a private rooftop built for entertaining. Move-in ready, and flexible in layout, the home easily accommodates up to four bedrooms depending on how you choose to use the space.
Policies
Sorry, policy info isn’t available right now. Check back later.
Home features
Central air
Dishwasher
Fireplace
Wood
Hardwood floors
Private outdoor space
Roof deck
View
City
Washer/dryer
Building amenities
No info on building amenities
About the building
264 West 124th Street
264 West 124th Street, New York, NY 10027
2 units
5 stories
1910 built
Property history
Prices shown are base rent only. For total monthly price and additional fees, see .
| Date | Base rent | Event |
|---|---|---|
1/20/2026 | $7,200 | Listed by Brown Harris Stevens |
2/22/2024 | $6,895 | |
1/12/2024 | $6,895 | |
12/22/2023 | $6,895 | |
1/19/2023 | $6,850 |
Sign in to take a closer look at how this home compares to similar homes.
Explore South Harlem
Transit
| Location | Distance |
|---|---|
ABCDat 125th St | 0.11 miles |
23at 125th St | 0.31 miles |
BCat 116th St | 0.38 miles |
23at 116th St | 0.49 miles |
1at 125th St | 0.55 miles |
Similar homes
Prices shown are base rent only and don't include any fees. Visit each listing to see a complete cost breakdown.
Similar Homes looks at ad spend and other factors like location, price, and number of beds and baths.























































































































