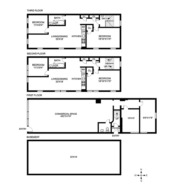
4,400 ft²
$409 per ft²
7 rooms
3 beds
3 baths
Mixed-use building
- Crown Heights
Resale
reported sale
Sold on 3/26/2022
Not yet verified by closing records
Seller's agents
This home has been saved by 21 users.
Listing by Compass, Corporate Broker, 1320 Fulton Street, Brooklyn, NY 11216
Common charges
Not applicable
Estimated payment
Taxes
$565/mo
Tax abatement
No info
About
Seller’s agent
description
Amazing opportunity to own a mixed use building in Crown Heights with a combined total sqft of 4,400. .Situated on the corner of Brooklyn Avenue and Lincoln Place, this 22 X 55 building (with 20' first floor extension) features a first floor commercial space with prime storefront plus full basement. 2nd floor is configured as 2 bed/ 1 bath and the 3rd floor is a configured as a 1 bed/ 1 bath rental.
Policies
Sorry, policy info isn’t available right now. Check back later.
Home features
Hardwood floors
Building amenities
No info on building amenities
About the building
267 Brooklyn Avenue
267 Brooklyn Avenue, Brooklyn, NY 11213
2 units
3 stories
1901 built
For sale
0 available units for saleFor rent
0 available units for rentDocuments and permits
View documents and permitsProperty history
- Price Change: ↓ $150,000 (-7.7%) on 3/30/21
- Days on market: 353 daysThis is the number of days the listing has been on StreetEasy.
| Date | Price | Event |
|---|---|---|
3/26/2022 | $1,800,000 | Sold by Compass |
1/27/2022 | $1,800,000 | In contract |
3/30/2021 | $1,800,000 | Price decreased by 8% |
2/8/2021 | $1,950,000 | Listed by Compass |
10/21/2020 | $2,000,000 |
Past listing photos
Sign in to take a closer look at how this home compares to similar homes.
Explore Crown Heights
Transit
| Location | Distance |
|---|---|
3at Kingston Av | 0.14 miles |
3at Nostrand Av | 0.3 miles |
25at President St | 0.35 miles |
34at Utica Av | 0.55 miles |
LIRRat Nostrand Avenue | 0.57 miles |
About Crown Heights
Rental prices shown are base rent before any fees. Visit listings for cost and fees breakdown.
SalesMedian asking price
3 beds
$1.67M
RentalsMedian asking base rent
3 beds
$3,899
Crown Heights has a lot going on. From the chaotic, commercial avenues of Nostrand and Utica to the wide, tree-lined esplanades of Eastern Parkway, the streets are always filled with locals shopping, catching up on the corner, and keeping tabs on neighbors. Walk down any of these streets and you're likely to find music playing from idling cars and bright Caribbean flags hanging from windows of apartment buildings. Every Labor Day, Crown Heights hosts the West Indian Day Parade, one of the city's largest annual street festivals which draws thousands of people from around the city and the world. The mix of people in such close proximity makes Crown Heights a fascinating microcosm of New York City. Living here, you'll be surrounded by a community with deep roots and rich heritage.
Learn more about Crown Heights



































































































































































