$3,200
For Rent
Base rent only. For total monthly price and additional fees, see .
822 ft²
$46 per ft²
2 rooms
1 bed
1 bath
Other type
- The Heights
Listed By
John LiButti
Hotpads Rentals
This home has been saved by 18 users.
Listing by Hotpads Rentals | Brokerage Listing ID: 2wt0x8pqanwhc-4dwdfeg2x48cu
Available
Available now
Days on market
169 days
Last price change
↓ $50 (-1.5%) on 9/30/25
About
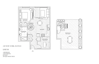
1 Br + Den, 822 Sqft - 300 Sqft Private Roof Deck with Amazing New City Views. The Jetco is the newest High End luxury rental building in Jersey City Heights. Located in the Heart of The Artist District, being classified as the next Wiliamsberg. This contemporary 4-story new construction elevator building presents uncompromising construction standards and sophisticated modern design, which provides the highest quality of urban living.
Policies
Sorry, policy info isn’t available right now. Check back later.
Home features
No info on home features
Building amenities
Services and facilities
Parking
Garage
Wellness and recreation
No info on wellness and recreation
Shared outdoor space
No info on shared outdoor space
About the building
268 New York Avenue
268 New York Avenue, Jersey City, NJ 07307
- units
- stories
- built
For rent
3 available units for rentProperty history
Prices shown are base rent only. For total monthly price and additional fees, see .
| Date | Base rent | Event |
|---|---|---|
10/22/2025 | $3,200 | Listed by Hotpads Rentals |
10/11/2025 | $3,200 | No longer available |
9/30/2025 | $3,200 | Price decreased by 2% |
9/30/2025 | $3,200 | Listed by Hotpads Rentals |
9/29/2025 | $3,250 | No longer available |
Sign in to take a closer look at how this home compares to similar homes.
Explore The Heights
Transit
| Location | Distance |
|---|---|
HBLRat 2nd Street | 0.31 miles |
HBLRat 9th Street/Congress St | 0.4 miles |
HBLRPATHat Hoboken Terminal | 1.11 miles |
PATHat Journal Square Station | 1.34 miles |
PATHat Pavonia/Newport Station | 1.37 miles |
Similar homes
Prices shown are base rent only and don't include any fees. Visit each listing to see a complete cost breakdown.
Similar Homes looks at ad spend and other factors like location, price, and number of beds and baths.




































































































































































