$5,800
For Rent
Base rent only. For total monthly price and additional fees, see .
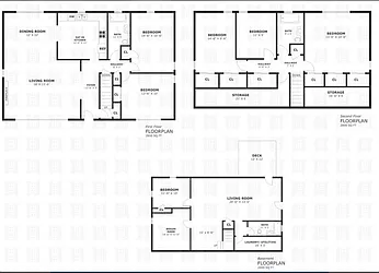
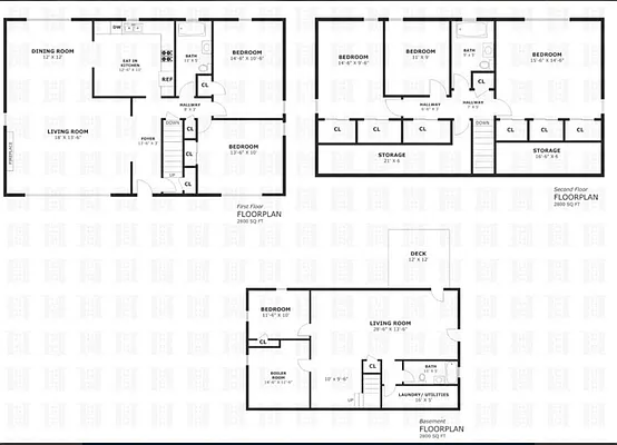
2,800 ft²
$24 per ft²
9 rooms
5 beds
3 baths
House
- Spuyten Duyvil
Under NYC law, you can't be charged a broker fee if you didn't hire a broker.
Listed By
Listing by Corcoran, Limited Liability Broker, 157 Columbus Avenue, New York, NY 10023
Available
6/1/2026
Days on market
Listed today
Last price change
No changes
About
Tucked along a quiet, tree-lined cul-de-sac in Spuyten Duyvil, Riverdale’s southernmost enclave, this spacious, light-filled home offers a rare combination of tranquility and convenience, just moments from the 1 train.
Set into the hillside and surrounded by mature trees, this inviting three-level residence feels both private and connected to nature.
Policies
Sorry, policy info isn’t available right now. Check back later.
Home features
Central air
Dishwasher
Fireplace
Hardwood floors
Private outdoor space
Balcony, Garden
View
Garden, Park, Skyline
Washer/dryer
Building amenities
Services and facilities
Laundry in building
Parking
Garage
Wellness and recreation
No info on wellness and recreation
Shared outdoor space
No info on shared outdoor space
About the building
2730 Edgehill Avenue
2730 Edgehill Avenue, Bronx, NY 10463
1 unit
1 story
1960 built
For rent
1 available units for rentProperty history
Prices shown are base rent only. For total monthly price and additional fees, see .
| Date | Base rent | Event |
|---|---|---|
4/6/2026 | $5,800 | Listed by Corcoran |
4/29/2024 | $5,475 | |
4/24/2024 | $5,475 | |
3/16/2024 | $5,475 | |
6/5/2024 | $5,495 |
Past listing photos
Sign in to take a closer look at how this home compares to similar homes.
Explore Spuyten Duyvil
Transit
| Location | Distance |
|---|---|
1at Marble Hill–225th St | 0.4 miles |
1at 231st St | 0.44 miles |
1at 238th St | 0.75 miles |
1at Van Cortlandt Park–242nd St | 1.06 miles |
4at Kingsbridge Rd | 1.17 miles |
Similar homes
Prices shown are base rent only and don't include any fees. Visit each listing to see a complete cost breakdown.
Similar Homes looks at ad spend and other factors like location, price, and number of beds and baths.


























































































































