View this home virtually
$3,443
For Rent
Base rent only. For total monthly price and additional fees, see .
Delisted 10/10/2024
- ft²
3 rooms
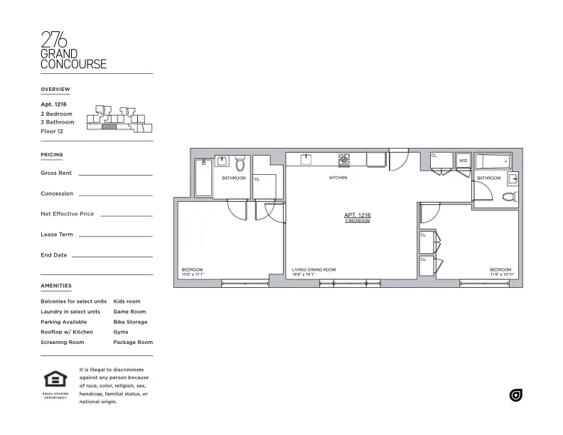
2 beds
2 baths
Rental unit
- Mott Haven
Under NYC law, you can't be charged a broker fee if you didn't hire a broker.
Listed By
This home has been saved by 3 users.
Listing by Nooklyn NYC LLC, Real Estate Principal Office, 28 Scott Avenue Ste, Brooklyn, NY 11385
Unavailable
Delisted on 10/10/2024
Days on market
6 days
Last price change
No changes
About
With custom interiors designed by Input Studios, 276 Grand Concourse brings luxury and ease to Mott Haven. Now offering in person and virtual tours of apartments and amenities. Contact our leasing team today!
Huge Two Bedroom/Two Bathroom home with Chefâs Kitchen featuring custom cabinetry and kitchen island perfect for entertaining. LG Stackable Washer/Dryer in unit for added convenience.
Policies
Pets allowed
Smoke-free
Home features
Dishwasher
Hardwood floors
View
City, Garden
Washer/dryer
Building amenities
Services and facilities
Bike room
Doorman
Virtual
Elevator
Laundry in building
Live-in super
Package room
Parking
Garage
Wheelchair access
Wellness and recreation
Children's playroom
Gym
Media room
Shared outdoor space
Roof deck
About the building
276 Grand Concourse
276 Grand Concourse, Bronx, NY 10451
215 units
12 stories
2022 built
Property history
Prices shown are base rent only. For total monthly price and additional fees, see .
| Date | Base rent | Event |
|---|---|---|
10/10/2024 | $3,443 | Delisted by Nooklyn NYC LLC |
10/4/2024 | $3,443 | Listed by Nooklyn NYC LLC |
7/27/2023 | $4,275 | |
7/13/2023 | $4,275 |
Sign in to take a closer look at how this home compares to similar homes.
Explore Mott Haven
Transit
| Location | Distance |
|---|---|
45at 138th St | under 500 feet |
6at 138th Stâ3rd Ave | 0.24 miles |
245at 149th StâGrand Concourse | 0.31 miles |
25at 3rd Avâ149th St | 0.58 miles |
6at Brook Av | 0.65 miles |
Similar homes
Prices shown are base rent only and don't include any fees. Visit each listing to see a complete cost breakdown.
Similar Homes looks at ad spend and other factors like location, price, and number of beds and baths.



























































































































































